actualités
projets
concours
Bureau
contact
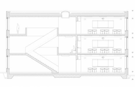
Rénovation extension de l'école Liotard
Genève
Concours 2021
Centre technique et logisitique OIKEN
Daval, Ville de Sierre (VS)
Concours 2020, 1er prix
Agrandissement école enfantine et primaire
Givisiez
concours 2020
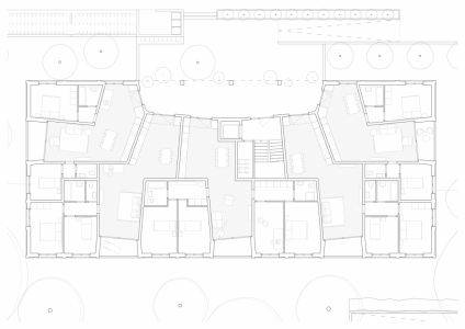
Etablissement médico-social Résidence Grande-Fontaine
Bex (VD)
Concours 2020
Construction de 2 salles de sport et extension du Collège des Parcs
Neuchâtel
Concours 2020
Foyer et garderie Sainte Famille
Renens (VD)
Concours 2020
Construction d'un immeuble de logements et d'un garage souterrain,
Pré-Colomb, Versoix (GE)
Concours 2020, 3è rang, 3è prix
Ecole de Pont Rouge
Lancy (GE)
Concours 2020
Groupe scolaire ESII
Meyrin (GE)
Concours 2019
Fondation de la Cité Universitaire Genève
Genève
Concours 2019, 2ème prix
Bâtiment multifonctionnel Ecole Internationale Genève
Founex (VD)
MEP 2018, projet lauréat
Nouveau cycle d'orientation
Vernier (GE)
Concours 2018, 2e prix
Logements et activités
Quartier des Nations (GE)
Concours sur invitation, 1er prix. 2018
Logements et mise en valeur des espaces publics
Confignon (GE)
Concours 2018
Logements et activités
Bernex PLQ de Saint-Mathieu (GE)
Concours sur invitation 2017, 1er prix.
Immeuble à Chêne-Bougeries
Chêne-Bougeries (GE)
Concours sur invitation, 2017
Extension de l'école
Meinier (GE)
Concours 2017
EMS Fondation Champ-Fleuri
Glion (VD)
Concours 2016, 4e rang, 3e prix
Logements coopératifs
Rue Chouet (GE)
Concours 2014, 1er prix. Réalisation 2016-2021
Equipements publics - Eco-quartier "Les Vergers"
Meyrin (GE)
concours 2014, 1er prix. Réalisation 2014-2018
Logements communaux
Soral (GE)
concours 2014, 1er prix. Réalisation 2014-2018
Nouvelle école
Orsonnens (FR)
Concours 2014, 2e prix
Nouvelle école de Vaulruz
Vaulruz (FR)
Concours 2014, 1er prix. Réalisation: 2014-2016
Agrandissement de l'école
Gletterens (FR)
Concours 2014
EMS
Montagny-la-Ville (FR)
Concours 2013
Logements pour étudiants
Meyrin (GE)
Concours 2013
Complexe scolaire et sportif du Reposoir
Nyon (VD)
concours 2013
Logements coopératifs "Equilibre"
Meyrin (GE)
Mandat d'étude parallèle, 2013
Agrandissement de l'école
Attalens (FR)
Concours 2013
Logements, Rue des Cordiers
Genève
Concours 2012, 5e rang, 3e prix
Logements, Rue Dr. J.-L. Prevost
Genève
Concours 2012, 2e prix
Logements
Marbrerie, Carouge (GE)
Concours 2012, 3e prix
Ecole primaire
St-Blaise (NE)
Concours 2012, 5e prix
Logements
Thônex (GE)
Concours 2012
Logements à la Fontenette
Carouge (GE)
Concours 2008, 8e prix
test