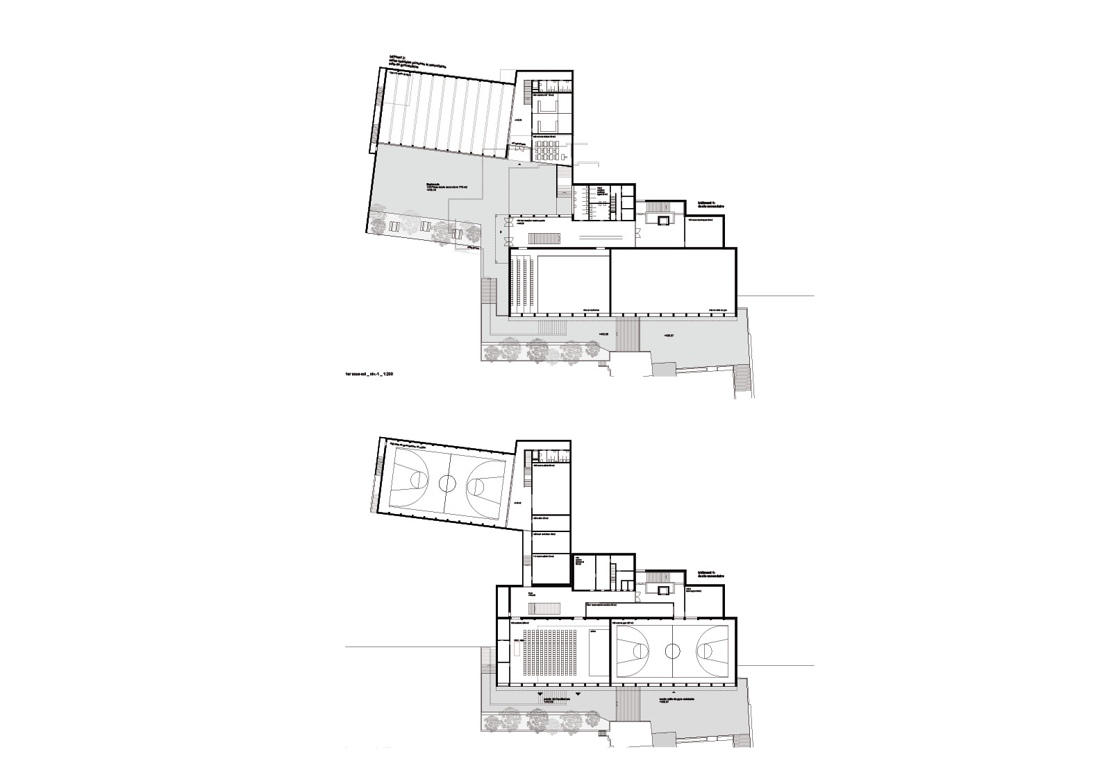
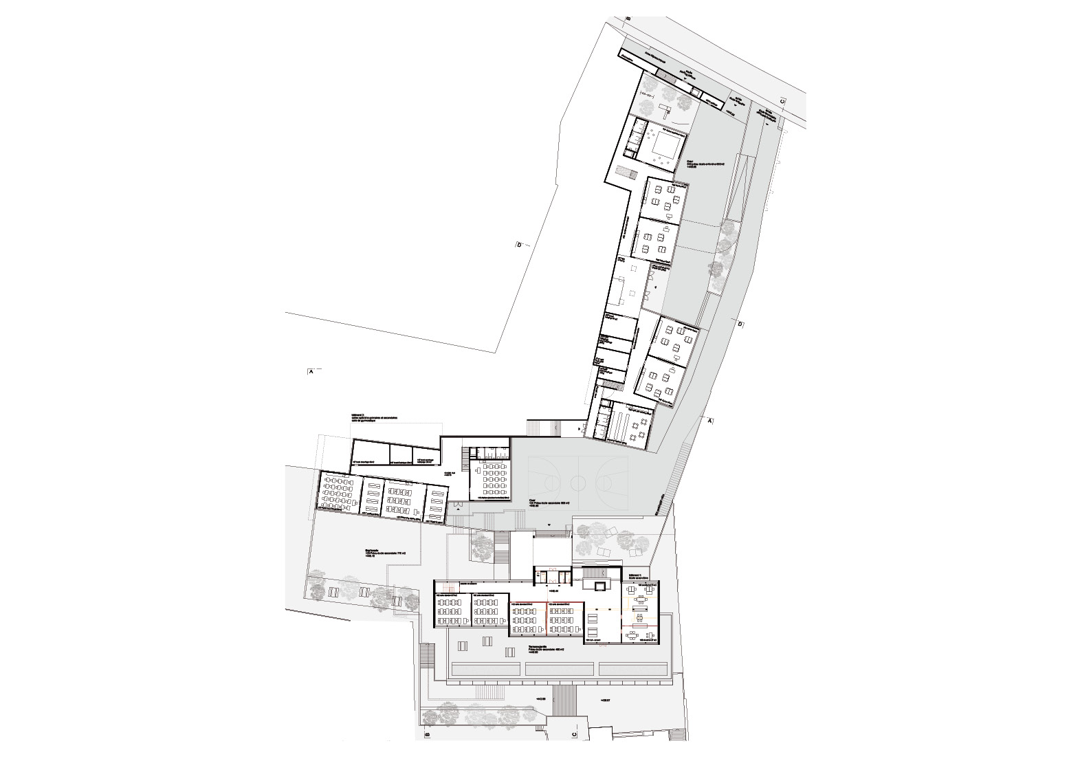
Ecole primaire - St-Blaise (NE) - Concours 2012, 5e prix

Lieu: St-Blaise (NE)
Ingénieur conseil: SB technique sarl
Notre équipe: Thomas Bolliger, Kristina Sylla Widmann, Nuno Costa, Yves Beetschen, Marc Widmann