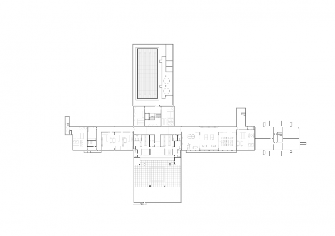
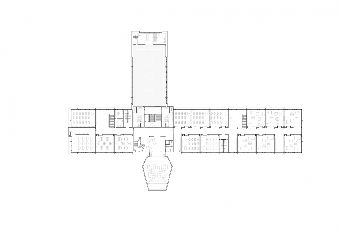
Rénovation extension de l'école Liotard - Genève - Concours 2021

Lieu: Genève
Notre équipe: Vlora Seljmani, Michael Casares, Teresa Ferreira, Yves Beetschen, Kristina Sylla Widmann, Marc Widmann