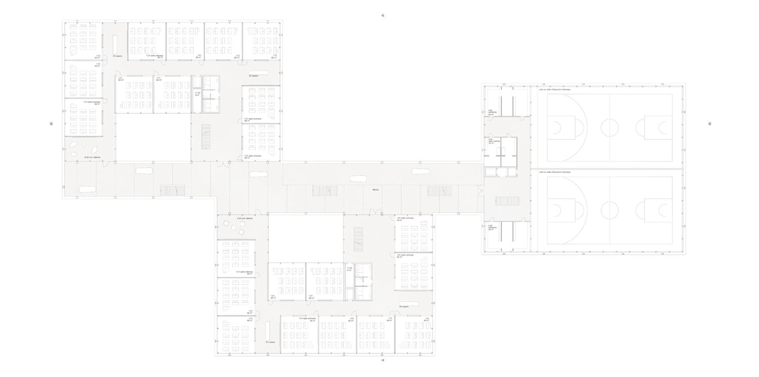
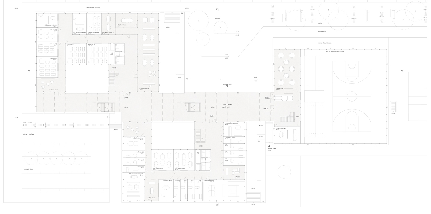
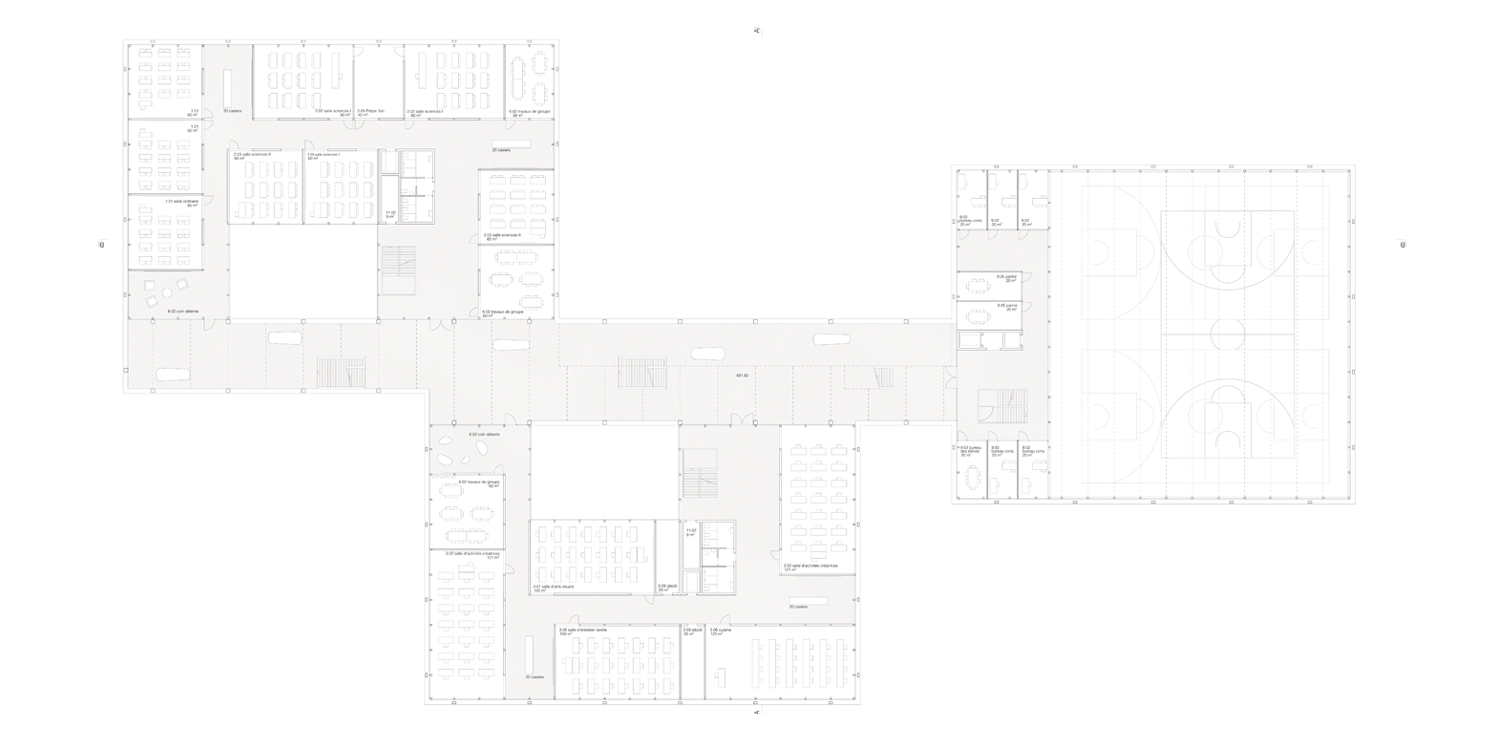
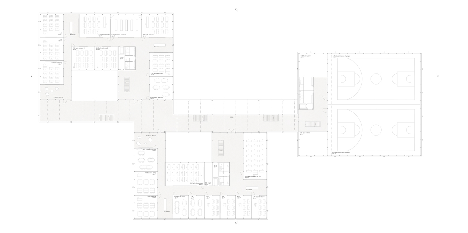
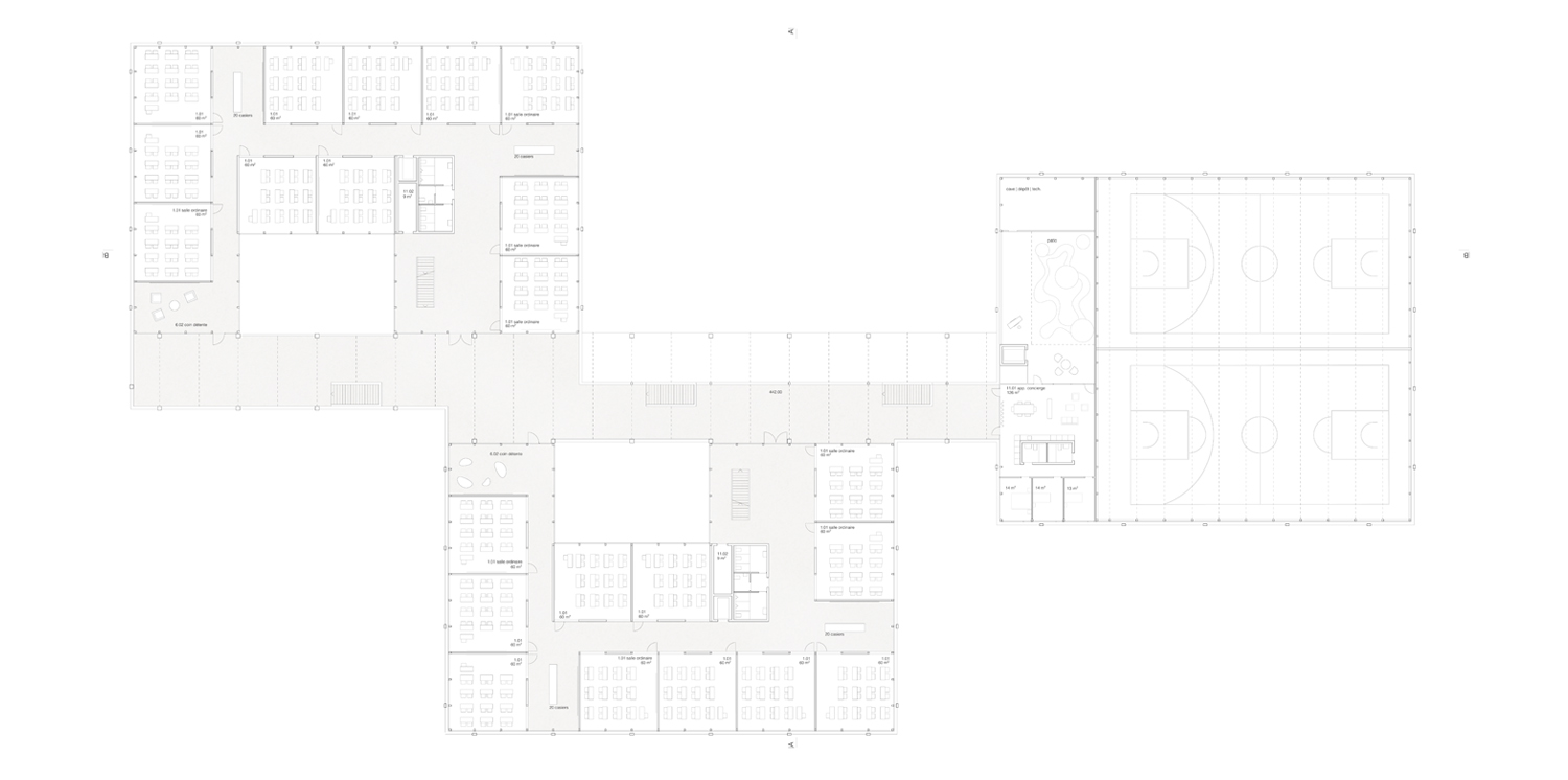
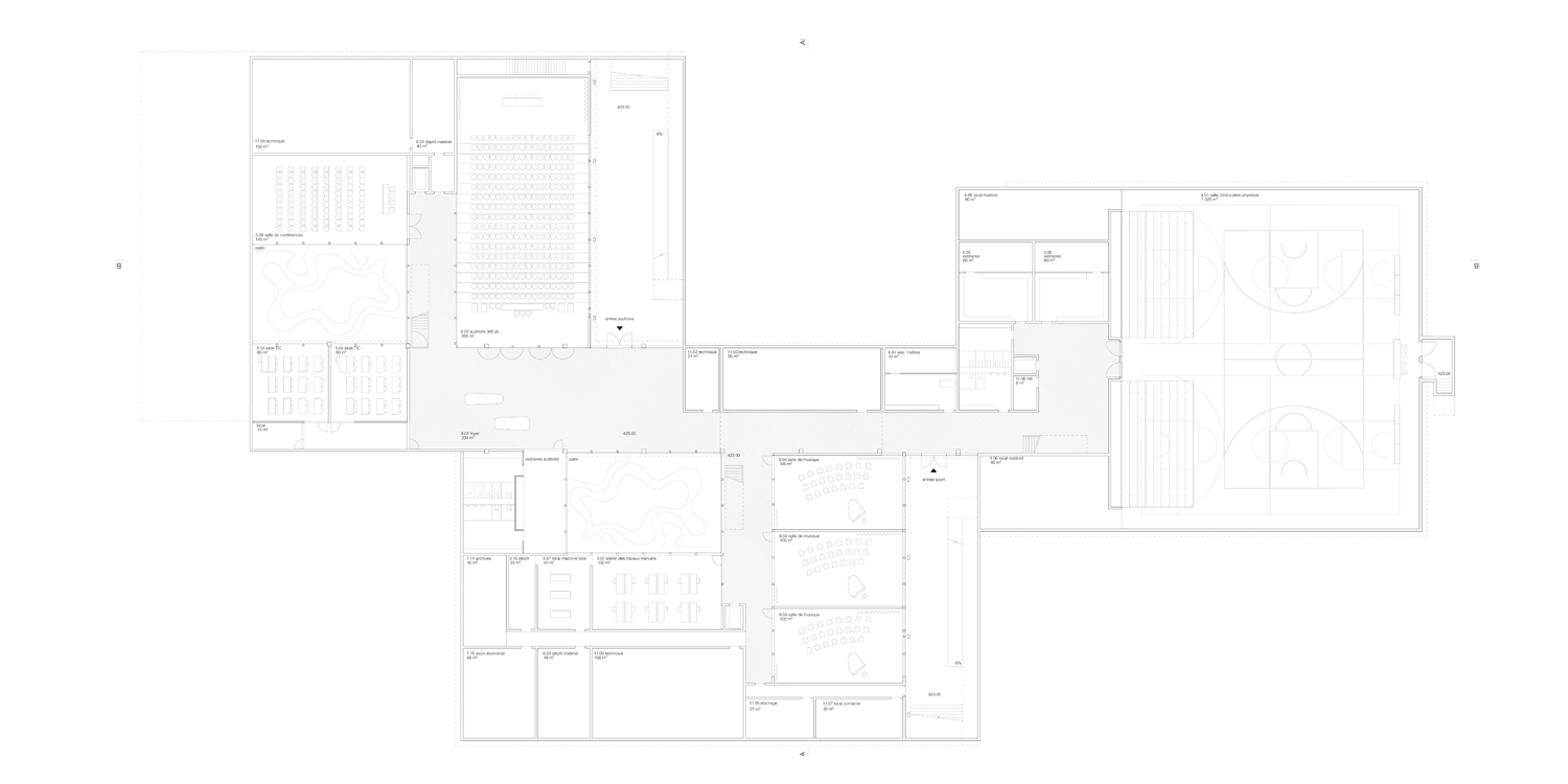
Nouveau cycle d'orientation - Vernier (GE) - Concours 2018, 2e prix

Lieu: Vernier (GE)
Ingénieur civil: B+S ingénieurs conseils SA
Ingénieur spécialisé: Effinart, CVC
Architecte paysagiste: Oxalis Architectes Paysagistes Associés
Notre équipe: Yves Beetschen, Teresa Ferreira, Daniel Medina, Nuno Costa, Joachim Fritschy, Kristina Sylla Widmann, Marc Widmann