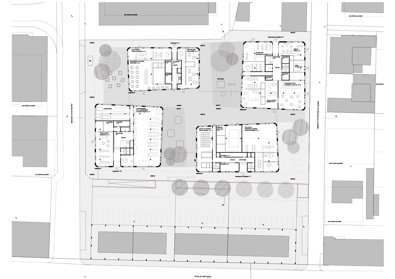
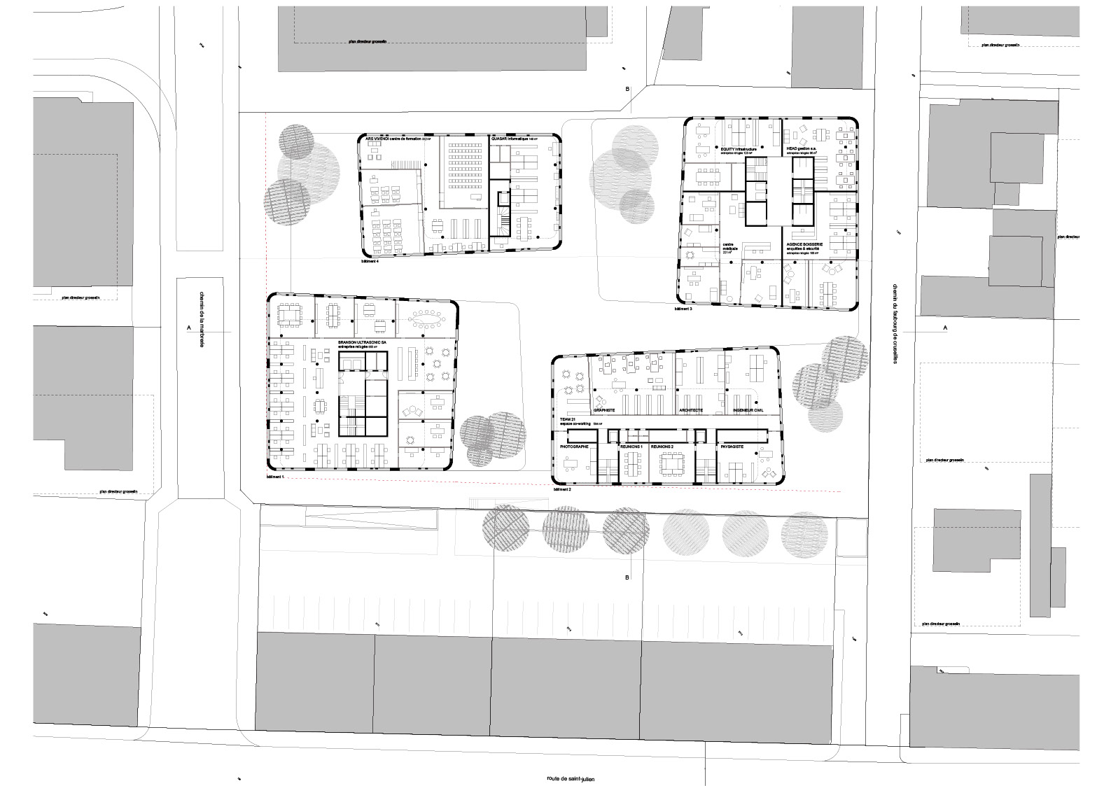
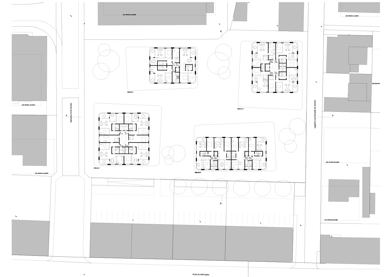
Logements - Marbrerie, Carouge (GE) - Concours 2012, 3e prix

Lieu: Carouge (GE)
Ingénieurs spécialisés: 
B+S ingénieurs conseils sa
SB technique ingénieurs conseils sarl
Notre équipe: Thomas Bolliger, Yves Beetschen, Nuno Costa, Kristina Sylla Widmann, Marc Widmann