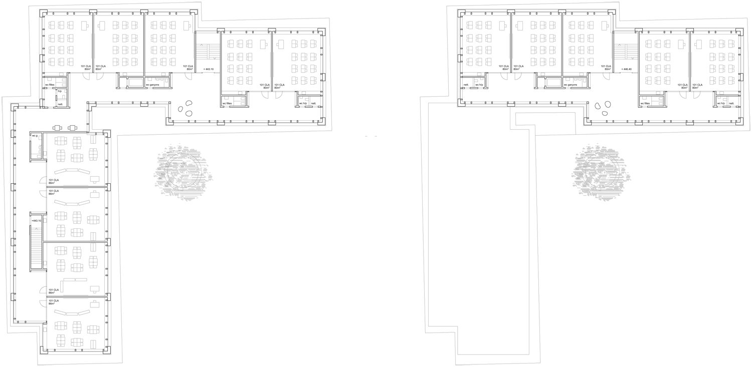
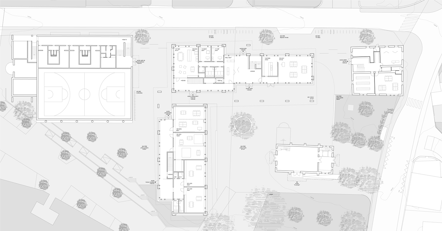
Extension de l'école - Meinier (GE) - Concours 2017

Lieu: Meinier (GE)
Notre équipe: Vanessa Muñoz, Tomàs de Riba, Yves Beetschen, Kristina Sylla Widmann, Marc Widmann