Equipements publics - Eco-quartier "Les Vergers" - Meyrin (GE) - concours 2014, 1er prix. Réalisation 2014-2018

Lieu: Meyrin (GE)
Notre équipe: Nuno Costa, Yves Beetschen, Michele Capatori, Tomàs de Riba, Kristina Sylla Widmann, Marc Widmann 

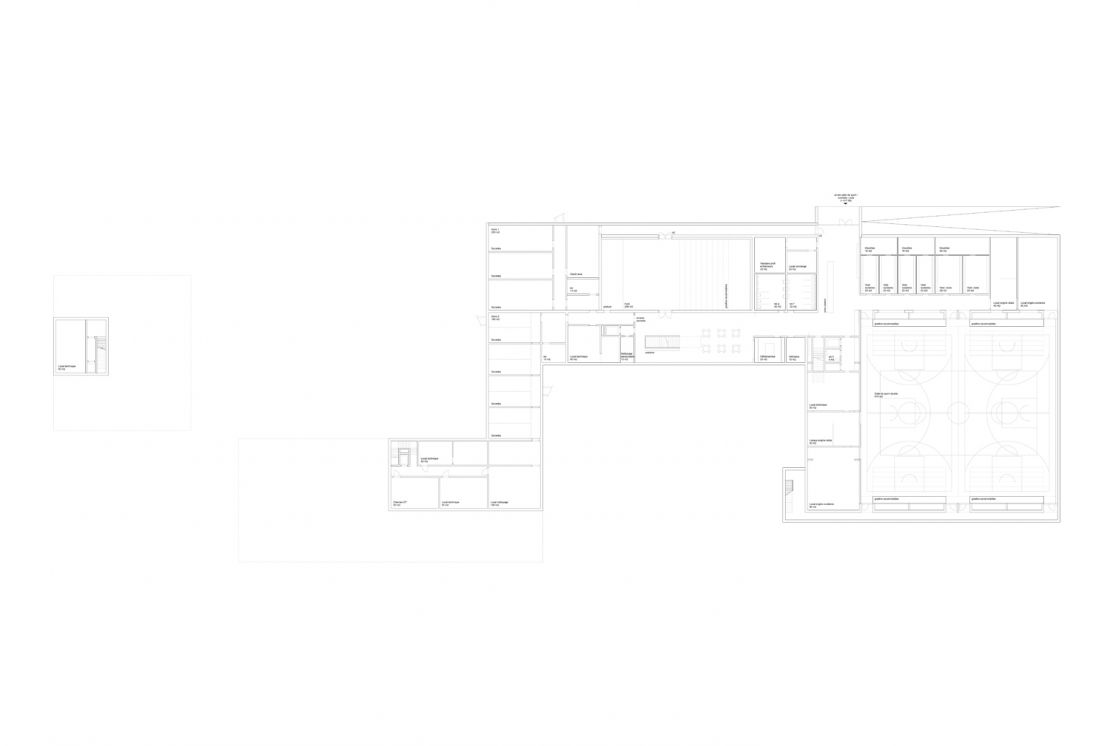
Située en limite de la couronne urbaine genevoise, cette infrastructure comprend une école primaire, une école spécialisée, des espaces socioculturels et une salle de sports. En relation directe avec le grand paysage, elle forme un ensemble à l'échelle du quartier. 
Nous avons organisé le projet en quatre pavillons autonomes. Chacun remplit une fonction tout en profitant de synergies avec les autres. Par le biais d'un système constructif hybride, l'architecture a une identité duelle qui intègre cet équipement public dans son contexte, tout en créant une atmosphère intérieure calme et singulière. 
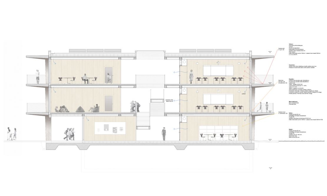
Le rez-de-chaussée et le sous-sol habritent les accès principaux et les espaces dédiés aux publics divers qui fréquentent la salle de sport, le restaurant, l'aula, les salles spécialisées et les espaces de réunions. Les salles de classes et les locaux scolaires se situent aux étages supérieurs. Tous les espaces bénéficient d'un généreux éclairage naturel et se prolongent par des espaces extérieurs. Tous jouissent de vues sur le paysage. 
La structure des constructions combine les qualités du béton et du bois. A l'intérieur, une charpente en bois partitionne les espaces. En façade, des portiques en béton armé forment une ossature durable qui remplit plusieurs fonctions. Tout en jouant le rôle de coursives et de voies d'évacuation, les avant-toits protègent les fenêtres, permettent de se passer de stores extérieurs et autorisent une relation plus libre et plus forte avec le paysage. En renforçant la stabilité des bâtiments, cette structure périphérique libère les espaces intérieurs, qui offrent de très nombreuses possibilités d'aménagement.