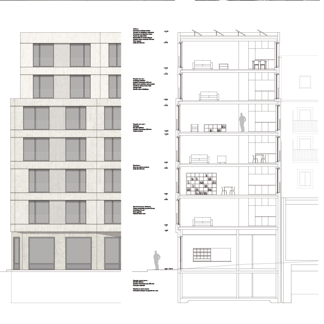
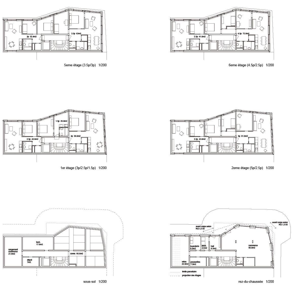
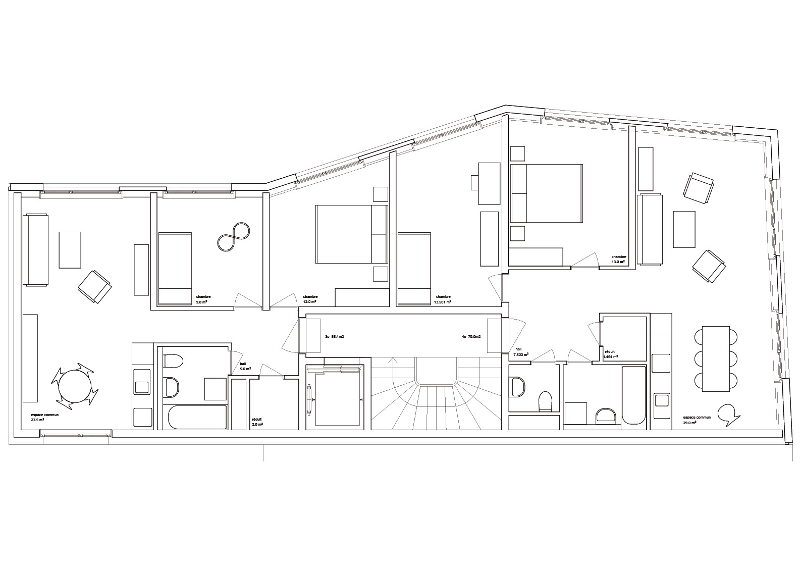
Logements, Rue des Cordiers - Genève - Concours 2012, 5e rang, 3e prix

Lieu: Genève
Ingénieur spécialisé: SB technique SBt, CVS
Notre équipe: Nuno Costa, Thomas Bolliger, Kristina Sylla Widmann, Marc Widmann