actualités
projets
concours
Bureau
contact
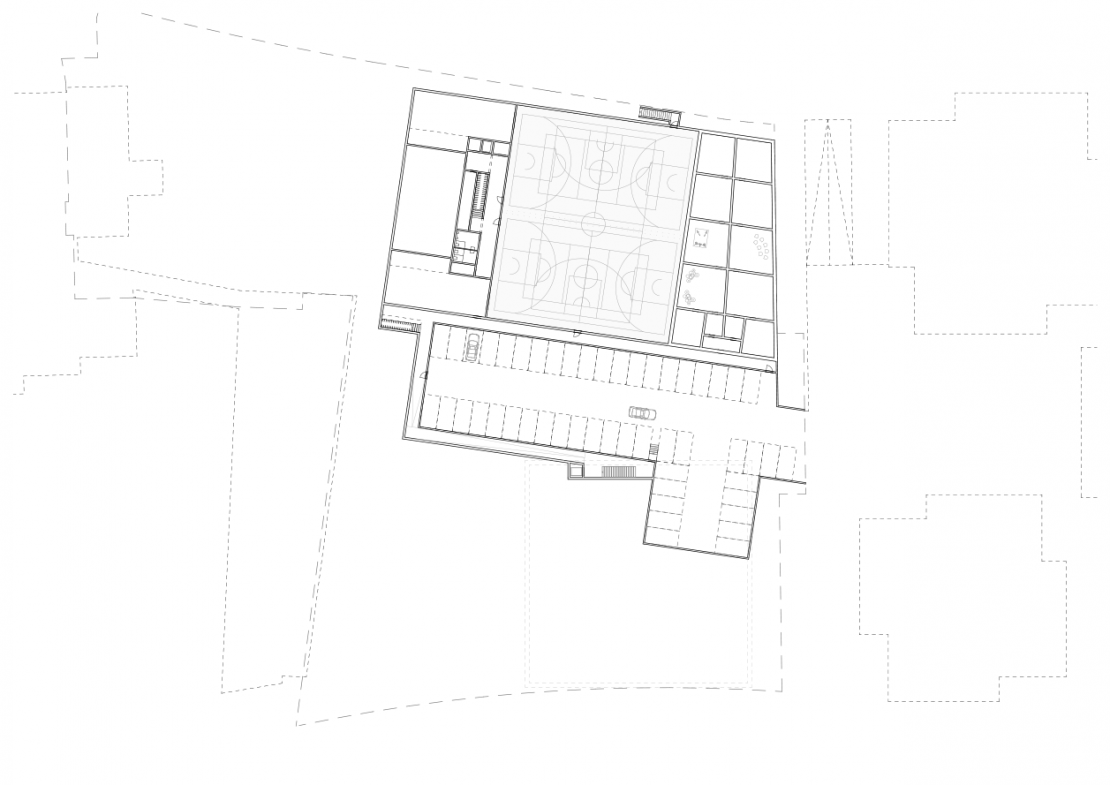
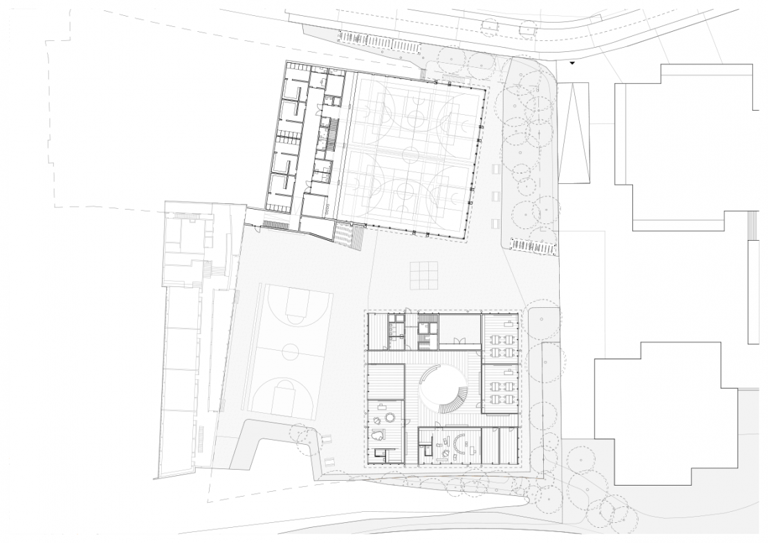
Agrandissement école enfantine et primaire - Givisiez - concours 2020
<
>