actualités
projets
concours
Bureau
contact
Ecole les Vergers / ©EspaceSuisse, juin 2021
Deux pavillons de logements à Genthod (GE) - p.60-64 ©Tracés
Arc-Award 2021 - Catégorie Bâtiments publics - nominés pour le projet "Les Vergers"
Le Concours Suisse - Présentation du projet "Les Vergers"
Ecole Les Vergers (GE) ©C3 (p.190-205)
Cherchons stagiaire en cours de formation, pour min. 6 mois. job@syllawidmann.ch
Meilleurs voeux pour 2021 (aménagements extérieurs, chantier privé)
Concours Centre OIKEN (VS), 1er prix
Centre OIKEN (VS) ©Canal 9
Centre OIKEN (VS) ©strom.ch
Centre OIKEN (VS) ©Le Nouvelliste
Centre OIKEN (VS) @OIKEN
De Aedibus n° 85
Ecole "Les Vergers" (GE) ©db
Bouquet Logements "Chouet" (GE) ©isabelle meister
Ecole "Les Vergers" (GE) dans Documentation Suisse du bâtiment ©rasmus norlander
Logements "Pré-Colomb" Versoix (GE) ©Tracé
Bouquet pour Logements à Genthod (GE)
Démarrage Logements St-Mathieu (GE) ©barthelemy nasse
Concours Logements "Pré Colomb", Versoix (GE), 3e rang-3e prix
Distinction SIA GE 2020 pour Ecole "Les Vergers" (GE)
Concours SIA 142 Port Gitana, Bellevue, Mme K. Sylla Widmann, membre du jury
Ecole "Les Vergers" (GE) ©Detail (p.70-73)
Zoom équipe, COVID-19
Ecole "Les Vergers" (GE) ©Sequences bois
Ecole "Les Vergers" (GE) ©Commune de Meyrin
Meilleurs voeux pour 2020 ©rasmus norlander
Sortie bureau Logements rue Chouet (GE) 2019
Distinction Hochparterre pour Ecole "Les Vergers" (GE), Lapin de bronze @Tages Anzeiger
Concours SIA 142, Quartier intergénérationnel d'habitations et aménagement extérieur à Avusy (GE), Mme K. Sylla Widmann, membre du jury
Lapin de bronze 2019 pour l'Ecole "Les Vergers" (GE) ©Hochparterre
SIA en visite, Ecole "Les Vergers" (GE)
"Vergers-Soral-Vaulruz" ©sia section vaud
Ecole "Les Vergers" (GE) dans Divisare ©rasmus norlander
Ecole "Les Vergers" (GE) dans afasia archzine
Ecole "Les Vergers" (GE) dans Subtilitas ©rasmus norlander
Nouvelle raison sociale: widmann architectes sàrl devient sylla widmann architectes sa
Démarrage logements à Genthod (GE)
La Cup 2019
On déménage... Rue des Maraîchers 8 - 1205 GE
Ecole "Les Vergers" (GE) ©Werk, bauen + wohnen
Kristina Sylla Widmann devient membre SIA section Genève
Concours Logements Cité-U (GE), 2e rang
Démarrage Logements rue Chouet (GE)
Publication Ecole "Les Vergers" (GE) dans GVARCHI
Kristina Sylla devient membre FAS
portfolio Kristina Sylla Widmann par BLVDR Création
Meilleurs voeux pour 2019 ©yves andré
Sortie bureau Bienne 2018
Concours SIA 142, Nouveau groupe scolaire Le Rolliet aux Cherpines (GE), M. Widmann, membre du jury
Concours Logements "Nations" (GE), 1er prix
MEP SIA 143, Praille-Acacias-Vernets. M. Widmann, membre du jury
Concours Ecole "EIG" (Founex, VD), projet lauréat
Nouvelle Ecole de Vaulruz (FR) ©Lignum (p.22-23)
Nouvelle Ecole de Vaulruz (FR) dans swiss-architects.com
Participation Prix Lignum 2018, nouvelle Ecole de Vaulruz (FR)
Concours CO "Vernier" (GE), 2e prix
MEP SIA 143, Maison Vaudagne. M. Widmann, membre du jury
Meilleurs voeux pour 2018 ©laura keller
Sortie bureau Fribourg 2017
Concours Logements "St-Mathieu" (GE), 1er prix
Chantier Ecole "Les Vergers" (GE)
Concours SIA 142, Ecole à Riaz (FR), M. Widmann, membre du jury
Logements à Genthod (GE), mandat direct
Nouvelle Ecole de Vaulruz (FR) ©Bâtir (p.31-36)
Concours SIA 142, EMS à Begnins, M. Widmann, membre du jury
Visite BSA-FAS Ecole "Les Vergers" (GE)
Nouvelle Ecole de Vaulruz (FR) ©Matin Dimanche
Concours SIA 142, EVE à Aire-la-Ville (GE), M. Widmann, membre du jury
Sortie bureau Zürich 2016
Participation de M. Widmann à la Table ronde
Nouvelle Ecole de Vaulruz (FR) ©La Gruyère
CO de la Broye (FR) ©Lignum (p.22-23)
Conférence de M. Widmann dans le cadre de S-Win
Sortie bureau 2016
Concours EMS à Glion (VD), 4e rang-3e prix
Journées SIA 2016, Collège de l'Esplanade, Begnins (VD)
Ecole "Les Vergers" (GE) ©Meyrin ensemble (p.8-9)
Ecole "Les Vergers" (GE) ©Chantiers et Rénovations
Ecole "Les Vergers" (GE) ©Tribune de Genève
Centre communal de Genthod (GE) ©sia sections romandes
Ecole "Les Vergers" (GE) ©Tribune de Genève
Démarrage Ecole "Les Vergers" (GE)
Autorisation Ecole "Les Vergers" (GE)
Démarrage Nouvelle Ecole de Vaulruz (FR)
Marc Widmann devient membre de l'AGA
Centre communal de Genthod (GE) ©Werk, bauen + wohnen
Concours logements rue Chouet (GE). 1er prix
Entretien M. Widmann ©Tribune de Genève
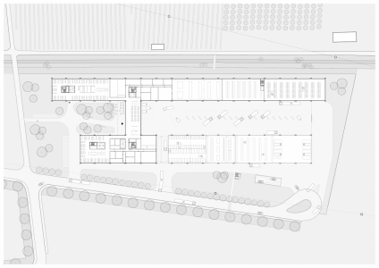
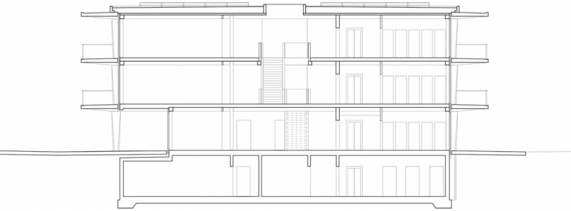
Concours Ecole "Les Vergers" (GE). 1er prix
CO de la Broye (FR) intro + p.135 ©sia section vaud
Ecole "Les Vergers" (GE) ©Hochparterre Wettbewerbe 5
Concours Nouvelle Ecole de Vaulruz. 1er prix
M. Widmann, conférence HEPIA Jointmaster
Concours Ecole à Orsonnens (FR). 2e prix
Inauguration Centre communal de Genthod (GE)
Concours Logements à Soral (GE). 1er prix
M. Widmann, enseignant invité HEPIA Jointmaster
Concours Logements "Cordiers" (GE). 5e rang-3e prix
Concours Logements "J.-L- Prevost" (GE). 2e prix
Concours Logements "Marbrerie" (GE). 3e prix ©Hochparterre, wettbewerbe 3
Concours Ecole "St-Blaise" (NE). 5e prix
Concours Logements "Marbrerie" (GE). 3e prix
Concours SIA 142, Logements aux Grottes (GE), M. Widmann, membre du jury
Marc Widmann devient membre FAS
Concours Logements à la Fontenette (GE). 8e prix
Marc Widmann devient membre SIA section Genève