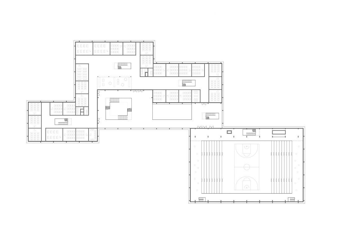
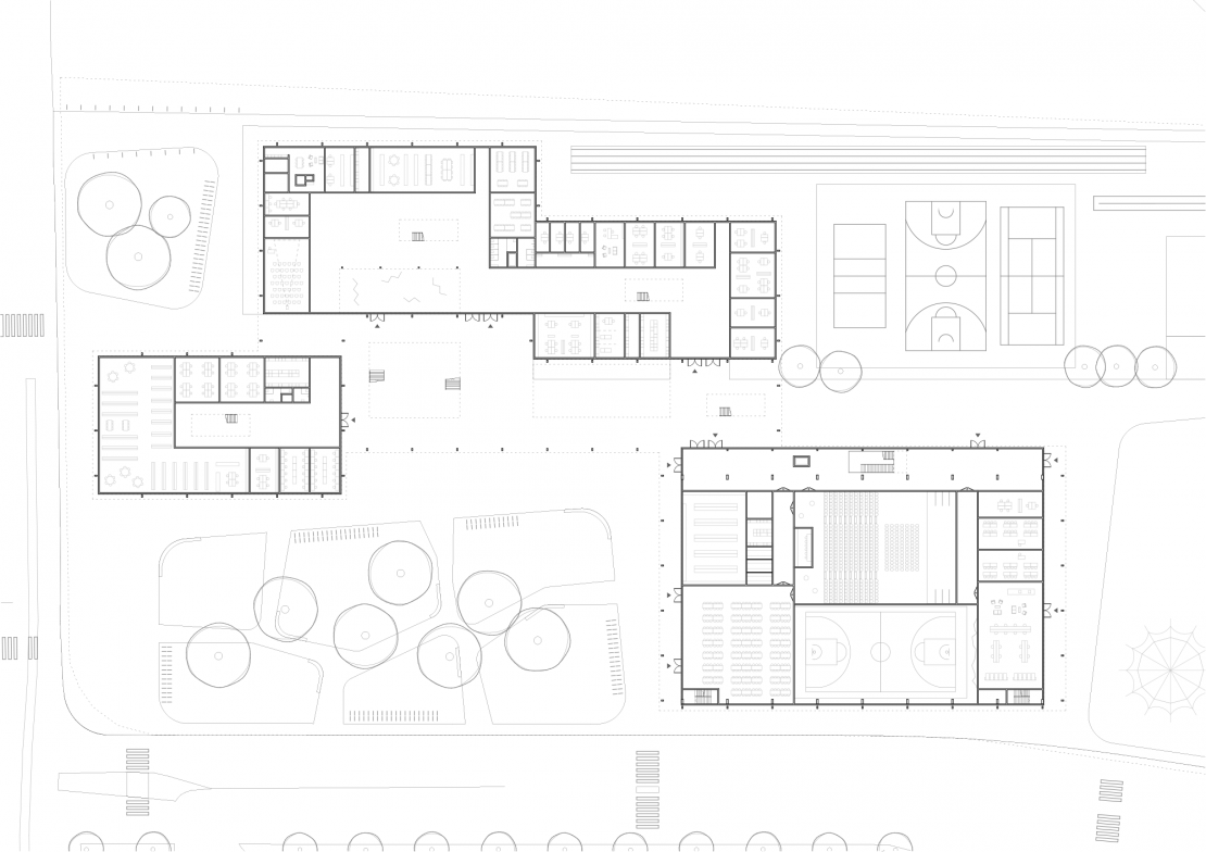
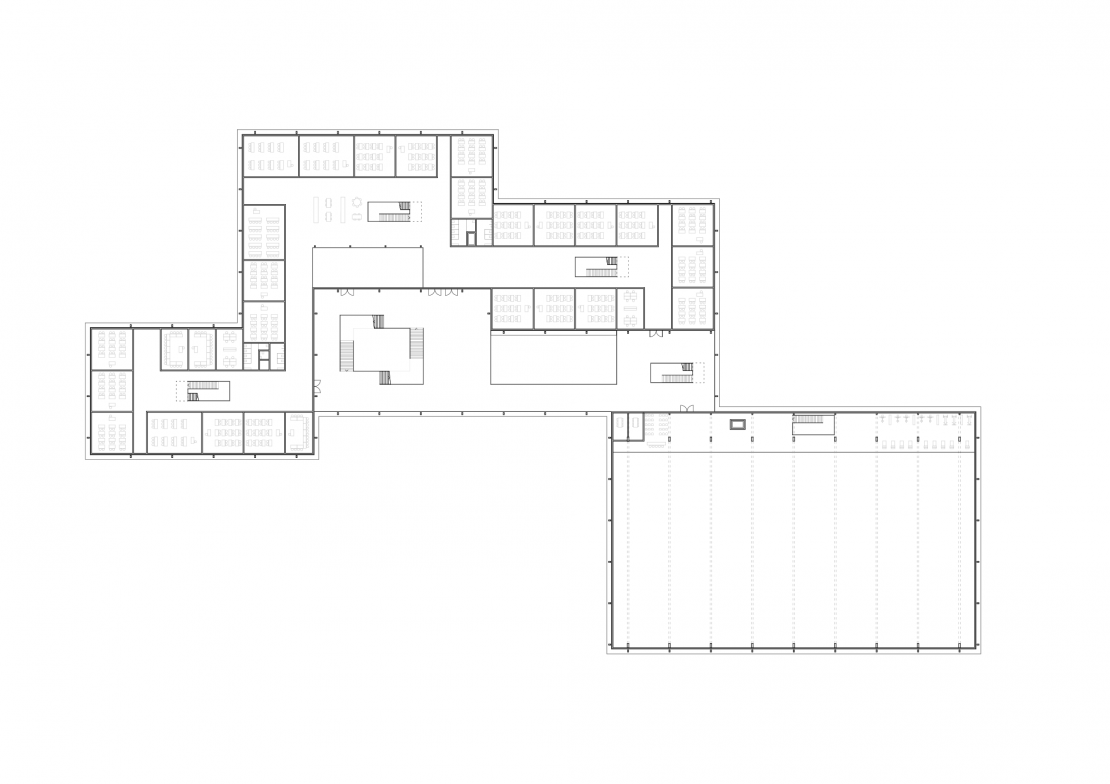
Groupe scolaire ESII - Meyrin (GE) - Concours 2019

Lieu: Meyrin (GE)
Notre équipe: Yves Beetschen, Benoît Greiner, Gaëtane Lemaire, Teresa Ferreira, Kristina Sylla Widmann, Marc Widmann