Centre technique et logisitique OIKEN - Daval, Ville de Sierre (VS) - Concours 2020, 1er prix

Lieu: Sierre (VS)
Notre équipe: Miya Atsusaka, Michael Casares, Yves Beetschen, Benoît Greiner, Kristina Sylla Widmann, Marc Widmann

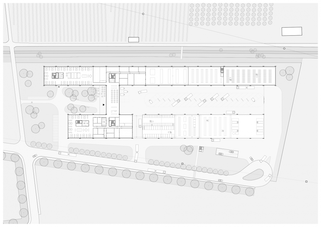
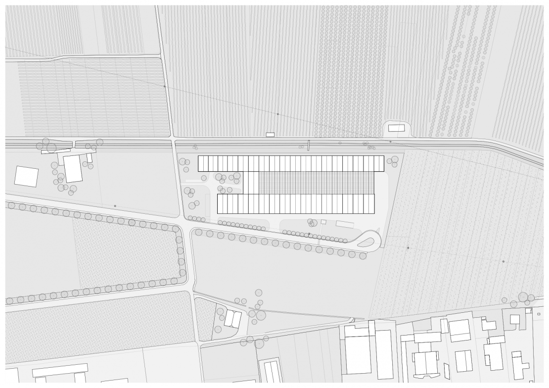
Cette nef industrielle est constituée de trois travées en coupe basilicale. Elle est organisée en bandes avec deux ailes  et un coeur commun constitué d'un côté d'un parc d'accès et de l'autre du parking des véhicules spéciaux de plein-pied. L'organisation en bandes amène une flexibilité programmatique et d'usage pour le Maitre de l'Ouvrage. Le projet peut, ainsi, être pensé pour un programme minimum et s'allonger en fonction de l'évolution des besoins. 
Le projet est organisé en séquences juxtaposées et connectées les unes aux autres grâce à un centre commun, qui les met en relation.  
La structure hors-sol en bois est composée de deux ordres: une structure primaire longitudinale constituée de cadres en BLC à trois articulations et une structure secondaire transversale. La travée longitudinale centrale est superposée à la structure primaire et se distingue par sa hauteur. Elle est éclairée et ventilée naturellement. Comme autant de référence à la zone agricole pré-existante, cette structure fait écho autant à la structure des serres qu'à celles des alignements d'arbres ou des vignes alentours. L'expression du bois, le mélèze, suit la logique de son environnement. Patiné par le temps à l'extérieur et clair à l'intérieur, il participe à l'identité du bâtiment et à un environnement de travail chaleureux. 
Le projet vise à donner une vision actuelle d'un Parc Industriel en pensant à minimiser l'empreinte écologique de la construction (ensemble du cycle de vie du bâti) et à optimiser l'utilisation du sol, tout en créant un espace vert à l'intérieur du projet. Le projet répond aux trois piliers du développement durable: social (avec les aménagements qui favorisent le lien social), économique (avec une construction durable et flexible), écologique (avec des matériaux de la région et recyclables).