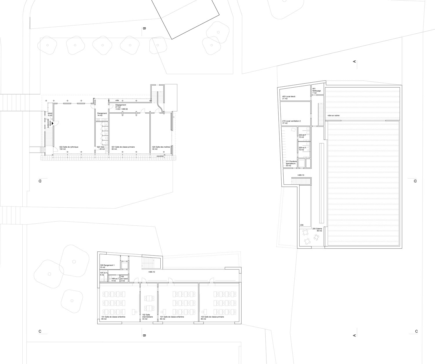
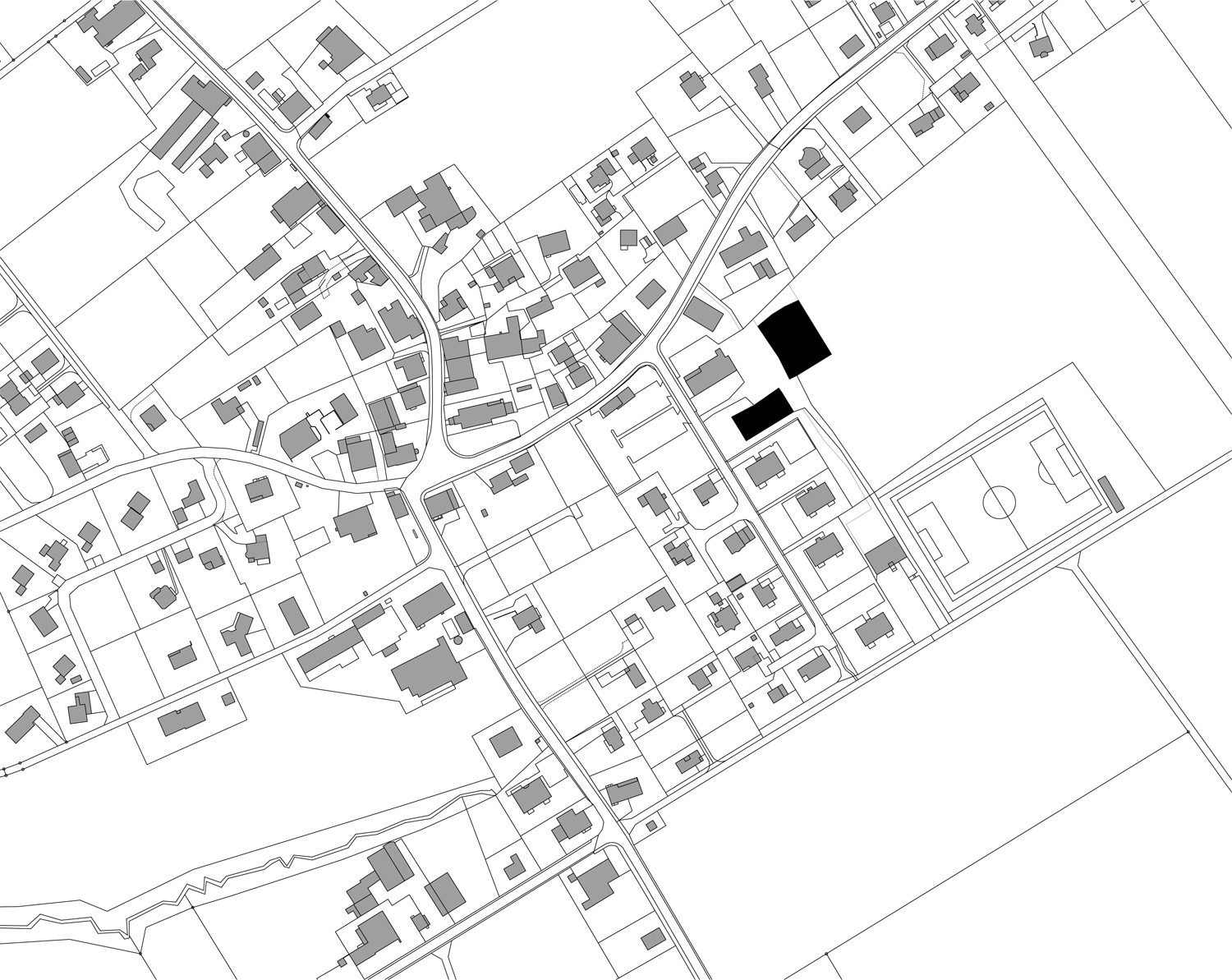
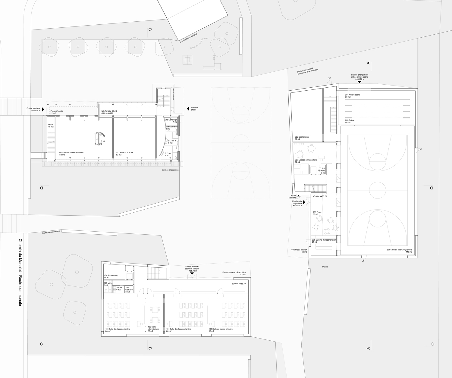
Agrandissement de l'école - Gletterens (FR) - Concours 2014

Lieu: Gletterens (FR)
Notre équipe: Michele Capatori, Nuno Costa, Kristina Sylla Widmann, Marc Widmann