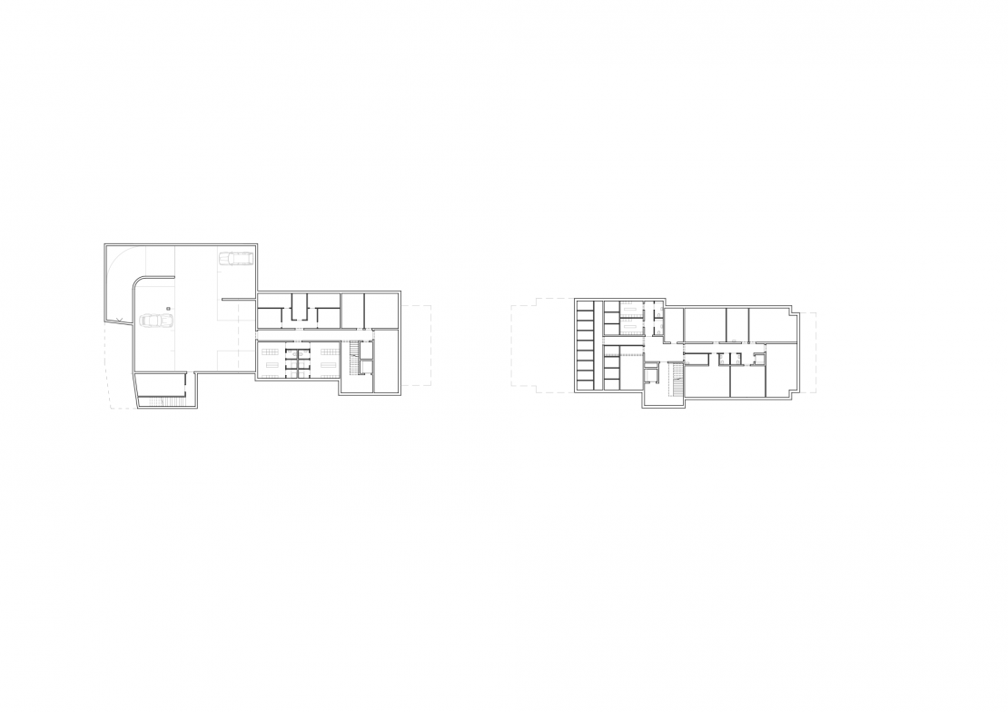
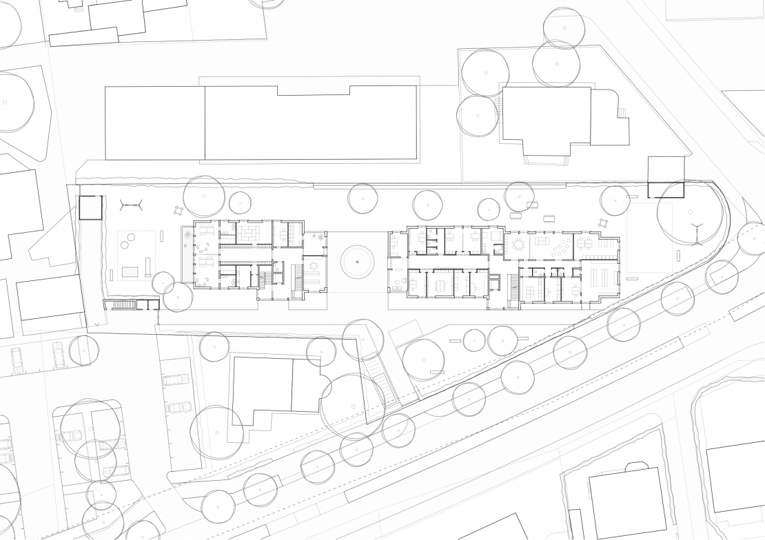
Foyer et garderie Sainte Famille - Renens (VD) - Concours 2020

Lieu: Renens (VD)
Notre équipe: Gaëtane Lemaire, Benoît Greiner, Yves Beetschen, Kristina Sylla Widmann, Marc Widmann