Immeubles de logements et activités - Bernex, PLQ de Saint-Mathieu (GE) - Concours sur invitation 2017, 1er prix. Réalisation 2020-

Année: 2018-
Lieu: Bernex (GE)
Maître de l’Ouvrage: Société simple Saint-Mathieu
Pilote: Opalys Project SA
Direction des travaux: Architech SA
Ingénieur civil: Ingeni SA
Ingénieurs spécialisés:
Hirt ingénieurs & associés SA, CV
srg engineering SA, S
PSA - Perrin, Spaeth & associés SA, E
Architecte paysagiste: Oxalis
Notre équipe: Tomàs de Riba (chef de projet), Claire Dereuder, Teresa Ferreira, Elsa Legoupil, Agustin Fernàndez, Anna Sarbu
Volume: 130'000 m3 SIA 416    

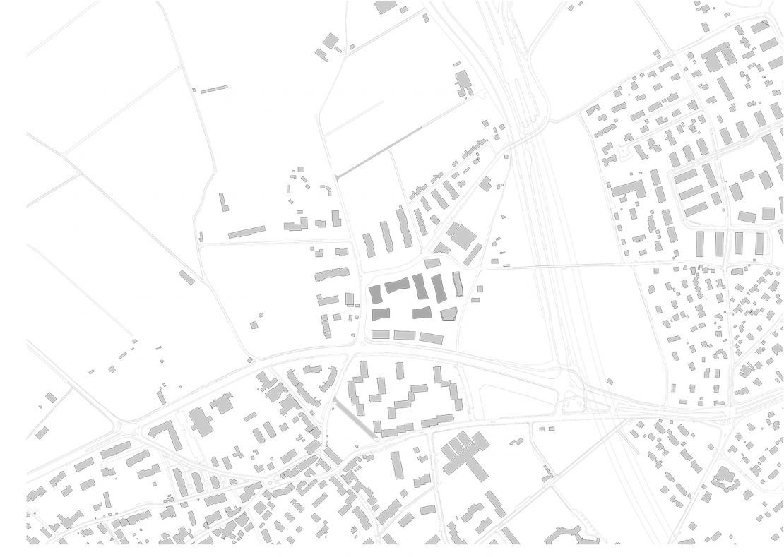
Cet ensemble urbain se déploie au sein du nouveau quartier de Saint-Mathieu, en bordure de l'agglomération genevoise. 
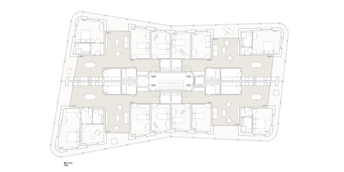
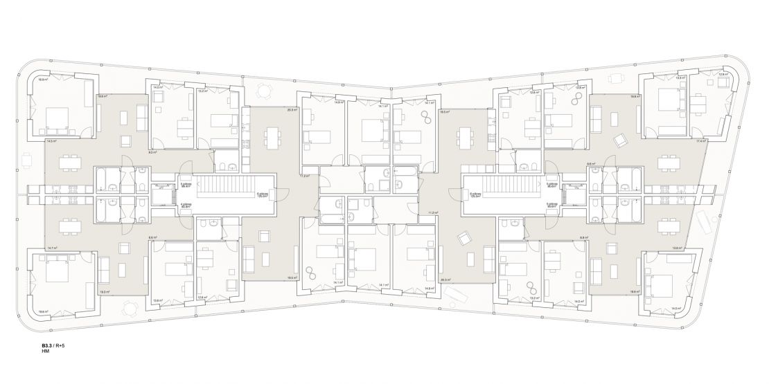
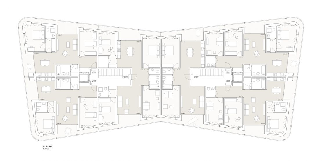
Le projet réinterprète un plan de quartier pré-existant. Il propose un îlot formé de six bâtiments indépendants dont les volumes respectent les dimensions du tissu urbain et rural environnant. Couronné d'espaces publics, l'ensemble entoure un coeur d'îlot paysagé. 
Le rez-de-chaussée de chaque immeuble abrite aussi bien des logements que des activités commerciales, associatives ou collectives, en lien direct avec la place et la voie piétonne arborée. Les transitions entre espaces publics et privés sont organisés de deux façons. Côté rues et places, de hauts socles émergent en saillie et donnent au projet son caractère urbain. Côté jardin, les logements sont surélevés par des terrasses qui compensent les différences de niveaux du terrain et assurent aux habitants l'intimité nécessaire. 
Les volumétries diverses des immeubles sont pliées sur deux côtés. Ce renfoncement brise le caractère habituellement linéaire de ce type de bâtiment. Il permet aussi de créer des typologies d'habitation particulières, avec des logements traversants placés au centre du plan, dans sa partie étroite, tandis que les extrémités arrondies accueillent les logements d'angles. La grande majorité des logements bénéficie ainsi de deux orientations et de points de vue variés sur le voisinage et le payage.