Nouvelle école - Vaulruz (FR) - Concours 2014, 1er prix. Réalisation 2014-2016

Année: 2014 - 2016
Lieu: Vaulruz (FR)
Maître de l’Ouvrage: Commune de Vaulruz
Architecte associé, direction des travaux: Nicolas Fröhlich
Ingénieur civil: Edy Toscano SA
Ingénieurs spécialisés:
Pierre Chuard Fribourg SA, CVS
srg engineering SA, E
a21 Ingénieurs, acousticien
Notre équipe: Michele Capatori (chef de projet), Yves Beetschen 
Photographe: Roger Frei
Volume: 5052m3 SIA 416
Coût total: CHF 4'900'000.-

Situé à l'angle d'une zone résidentielle, en bordure de terrains agricoles, ce pavillon scolaire redessine la limite du village fribourgeois. Son implantation définit un espace public bien délimité, propice à la création d'un aménagement paysager. 
L'identité générale et la cohérence de construction de ce projet se situent dans son plan rayonnant en forme de fleur, qui permet de créer une immersion dans la paysage par le biais de grandes ouvertures. Nous voulions également donner une forte présence au bois et laisser les matériaux apparents. 
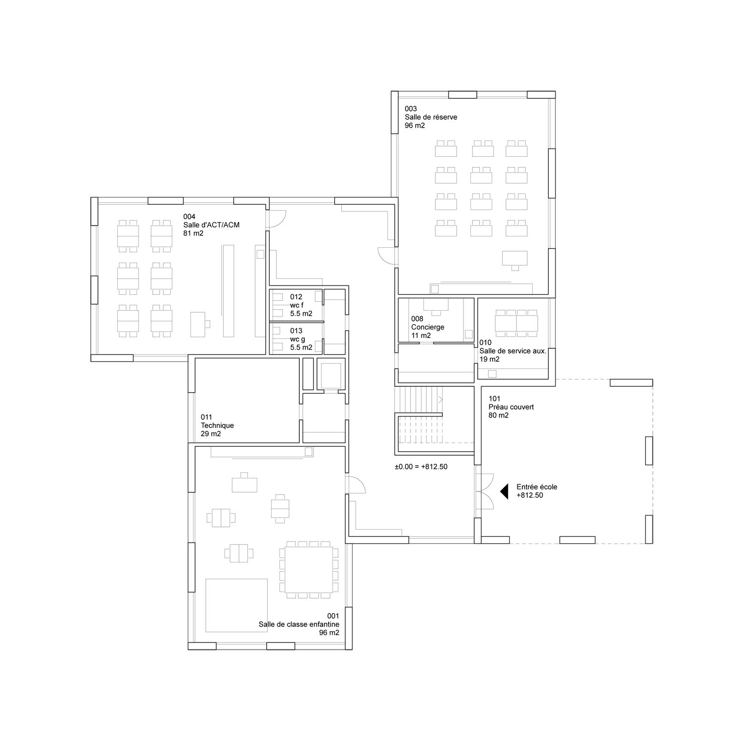
Le volume du bâtiment comprend deux niveaux sans sous-sol. Les salles de classes sont disposées aux deux bouts d'un couloir central en forme de "S" qui inclut la cage d'escalier et les sanitaires. Les deux extrémités de cette distribution s'élargissent afin de créer un espace, à la fois vestiaire et sas d'entrée, qui donne accès à deux classes. Ouverte sur trois côtés, chaque classe offre un panorama différent selon sa situation. 
La structure porteuse a été construite avec le bois des forêts environnantes. Dans les classes, les poutres et les parois en sapin sont apparentes. Dans les couloirs, les murs sont revêtus de fibres de bois agglomérées au ciment. Poncées dans les classes et teintées dans les couloirs, les chapes sont visibles. A l'extérieur, les façades sont en mélèze.