Logements communaux - Soral (GE) - Concours 2013, 1er prix. Réalisation 2015-2017

Année: 2014 - 2017
Lieu: Soral (GE)
Maître de l’Ouvrage: Commune de Soral
Direction des travaux: M Architecture
Ingénieur civil: Ingeni SA
Ingénieurs spécialisés:
Rigot Rieben Engineering SA, CVS
Scherler ingénieurs conseils, E+ sécurité
AcouConsult sàrl, acoustique
Notre équipe: Tomàs de Riba (chef de projet), Daniel Medina, Michele Capatori, Nuno Costa 
Photographe: Laura Keller
Volume: 8'000 m3 SIA 416
Coût total: 7'742'000.- CHF TTC

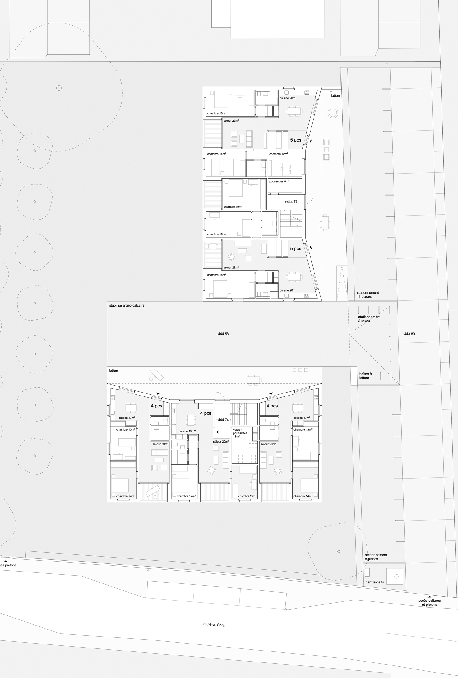
Ces deux immeubles d'habitation se situent à l'entrée du village genevois, face à un vaste paysage ouvert. Inscrit dans un plan de quartier en zone patrimoniale, leur programme comprend quatorze logements d'utilité publique. 
La première intention du projet consistait à intégrer ces immeubles de campagne de manière fine dans le site de la commune. Nous voulions que leur architecture ait un caractère à la fois rural, domestique et contemporain. Il s'agissait également d'établir une relation forte entre les deux immeubles par le biais d'une cour centrale ouverte sur un verger situé en limite de parcelle. 
Le caractère traversant des logements tisse un lien entre cour et jardin. La cour est un lieu collectif. Sa nature d'espace partagé se matérialise par un large avant-toit qui protège une coursive d'accès aux logements et aux cuisines. Les jardins sont des espaces semi-privés sur lesquels donnent le séjour, les chambres et une loggia. Sous le toit, les volumes ont été conçus de façon à pouvoir être entièrement habitables. 
Le système constructif est mixte. Les murs sont en béton, l'ossature des façades et les toitures en bois, tandis que les dalles associent bois et béton. Recouverte à l'extérieur d'un crépi minéral balayé, l'enveloppe est perméable à la vapeur d'eau et offre un excellent rapport entre épaisseur et performance énergétique. La toiture est intégralement recouverte de zinc naturel plaqué.