Centre communal - Genthod (GE) - Concours 2008, 1er prix. Réalisation 2011-2013

Année: 2008 - 2013
Lieu: Genthod (GE)
Architecte associé: Nicolas Fröhlich
Maître de l’Ouvrage: Commune de Genthod
Ingénieur civil: Ingeni SA
Ingénieurs spécialisés:
SB Technique, CV
Schumacher Ingénierie SA, S
Dumont Schneider SA, E
Decibel acoustique
TTC sàrl, ingénieur scénique
Architecte paysagiste: Oxalis 
Notre équipe: Yves Beetschen (chef de projet), Michele Capatori, Jeremy Butty, Daniela Dimitrova, Géraldine Buffin, Rosaly Justo, Thomas Bolliger
Photographe: Yves André
Volume: 15'300m3 SIA 416
Coût total: CHF 16’580’000.-

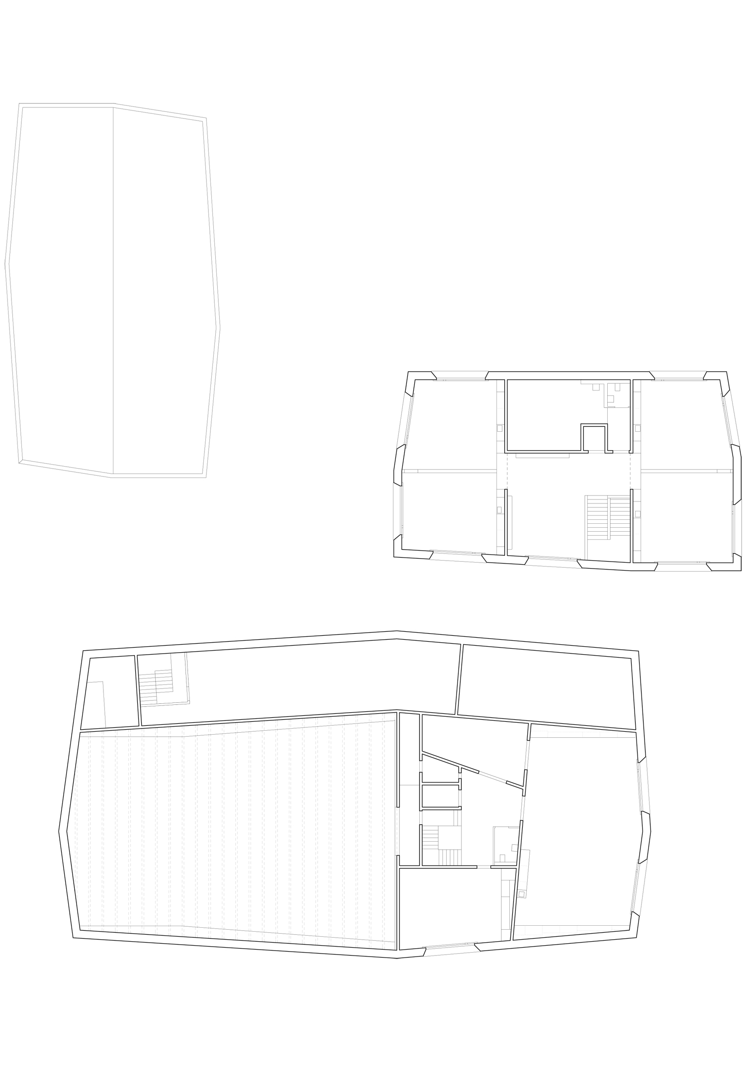
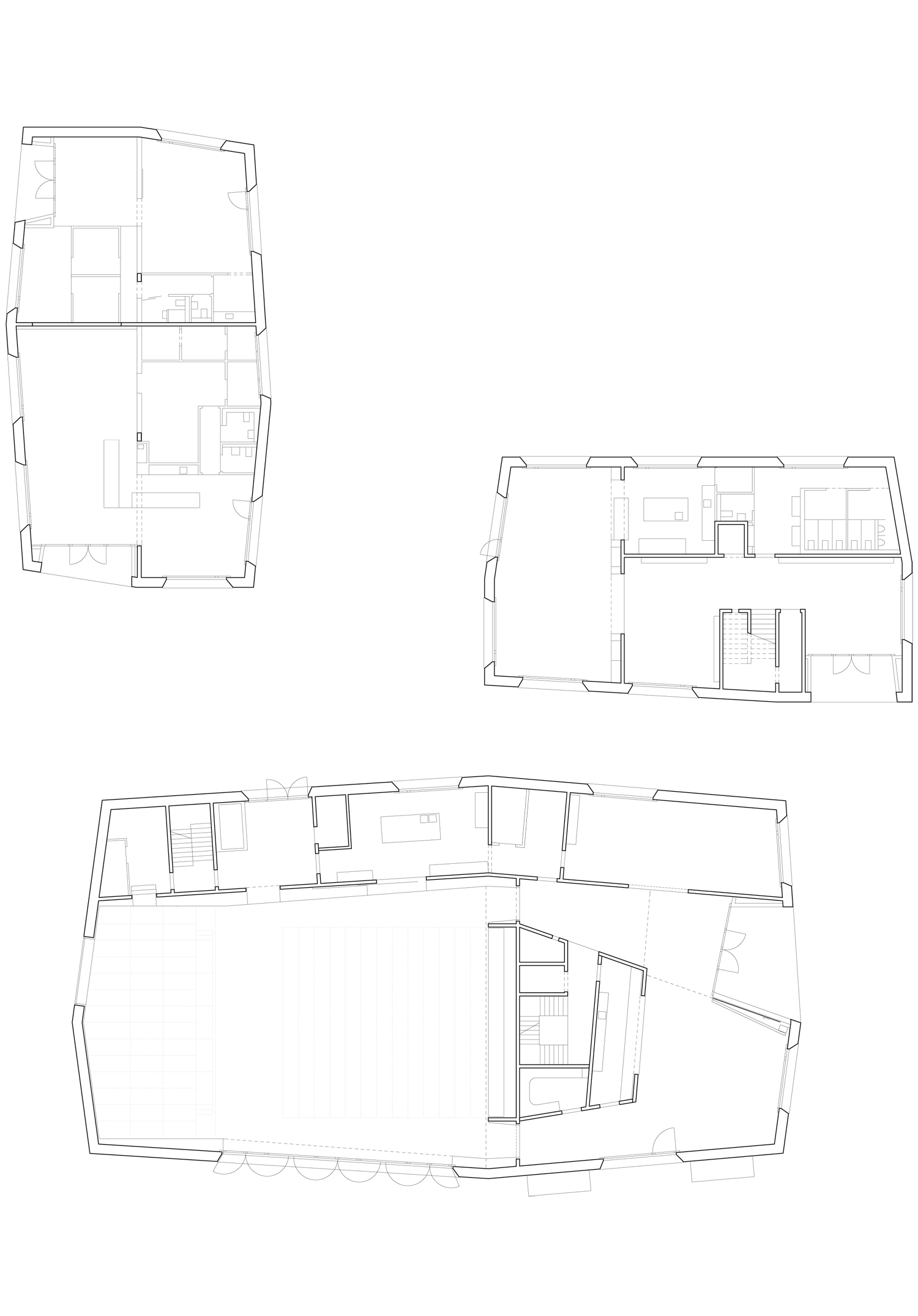
Cet ensemble se compose de trois bâtiments indépendants: le premier abrite une salle des fêtes, le deuxième des activités parascolaires et le troisière un commerce, une épicerie et un office de poste. 
Le territoire de la commune comprend notamment un village historique, une zone d'habitat individuel et des fermes agricoles. L'idée dominante du projet consistait à composer avec la richesse d'un biotope très divers. 
Les dimensions des trois constructions respectent l'échelle du village et des habitations pavillonnaires. L'implantation des volumes définit une suite d'espaces publics dans la continuité de parcours piétons alentours. Leur disposition crée un ensemble ouvert en forte relation avec son contexte. 
Le système constructif s'inspire des maisons villageoises et des fermes. Il comprend une structure verticale monolithique en béton isolant. Les dalles et les toitures sont en bois ou mixtes. Les murs sont massifs, percés de grandes ouvertures habillées par des fenêtres en bois. Les façades sont recouvertes de crépi.
Du point de vue énergétique, ces principes constructifs obéissent à des standards performants. Grâce à des panneaux solaires et à un chauffage par géothermie, cet ensemble produit en outre plus d'énergie qu'il n'en consomme.