Logements Coopératifs - Rue Chouet (GE) - Concours 2014, 1er prix. Réalisation: 2019-2021

Année: 2016-2021
Lieu: Genève
Maître de l'Ouvrage: La Codha
Ingénieur civil: B. Ott et C. Uldra sàrl
Ingénieurs spécialistes: 
Energestion SA, CVS
Zanetti ingénieurs conseils SA, E
Architecture & Acoustique SA, acoustique
Adrien Küpfer, ingénieur géomètre
Notre équipe: Michele Capatori (chef de projet), Michael Casares, Kristina Sylla Widmann, Marc Widmann

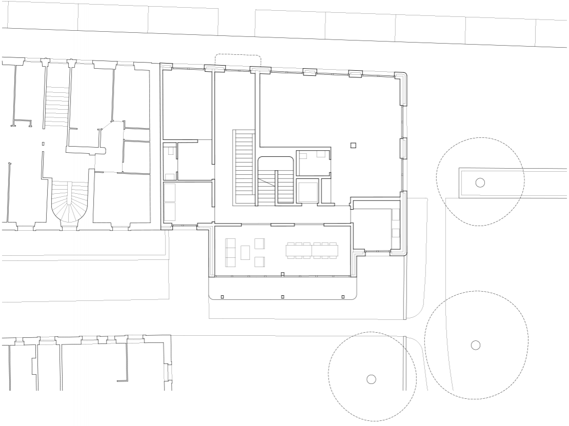
Le site de cette construction se trouve en limite nord-ouest du quartier des Grottes, sur la rive droite de la ville de Genève. Le bâtiment se place dans le prolongement d'un front de rue défini par deux anciens immeubles locatifs de cinq étages avec combles. Au centre de la parcelle s'élève encore un pavillon de logements. 
L'enjeu de ce projet consistait à dessiner un gabarit qui s'insère de façon organique dans ce tissu urbain. Il s'agissait également d'imaginer une typologie architecturale adaptée au lieu comme au mode de vie en coopérative. 
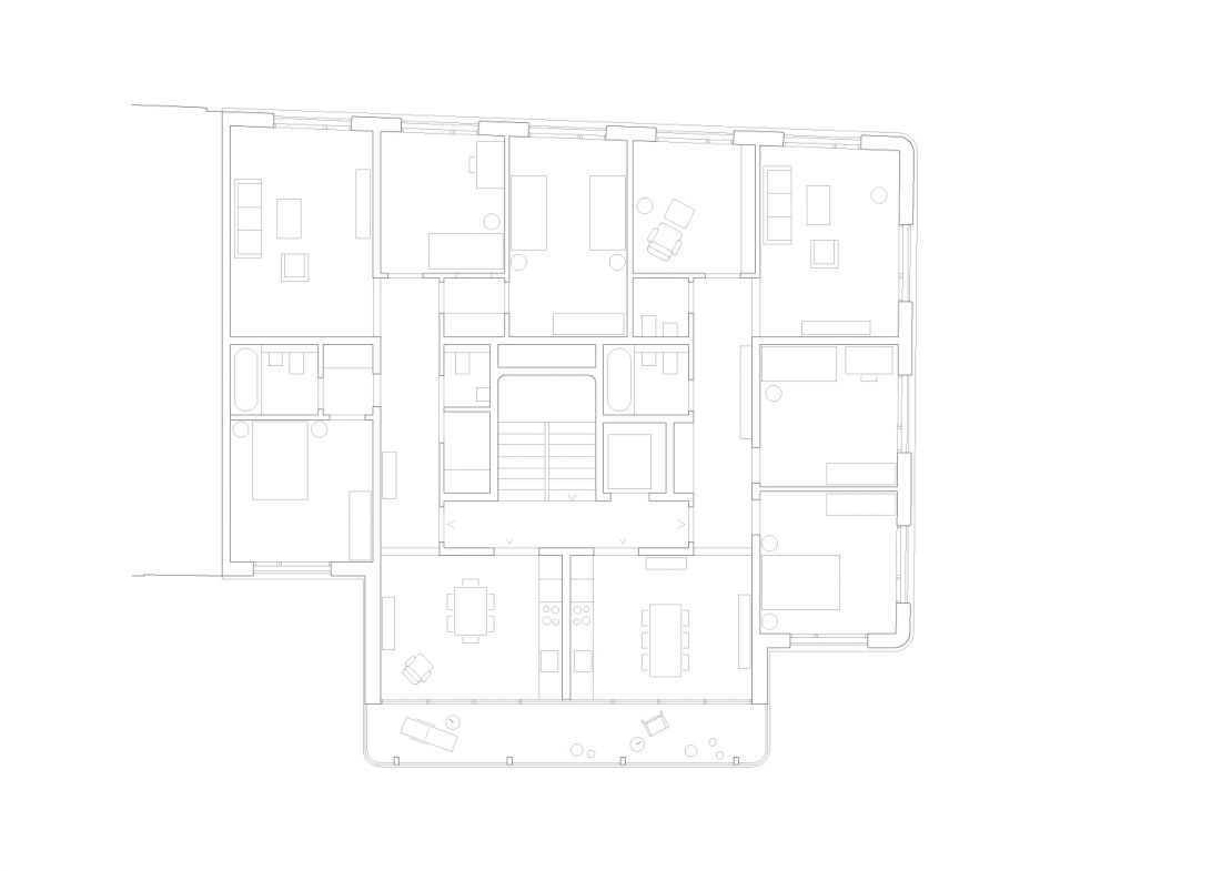
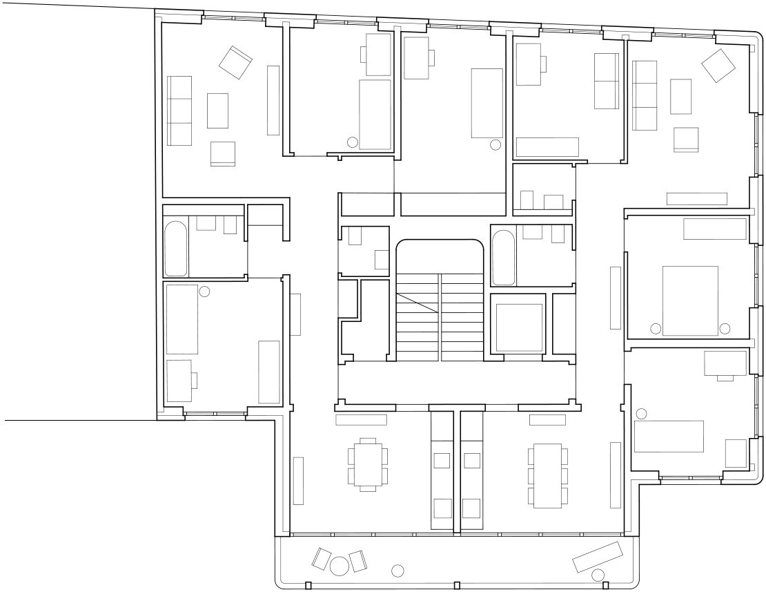
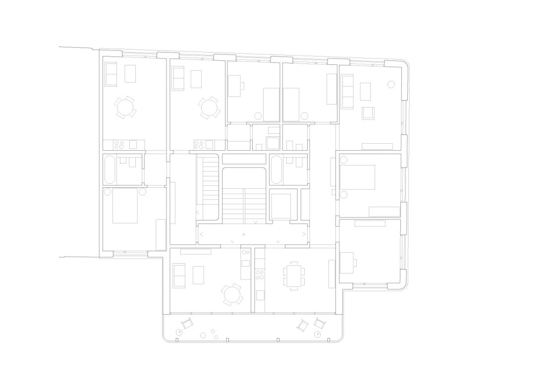
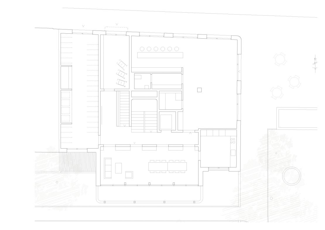
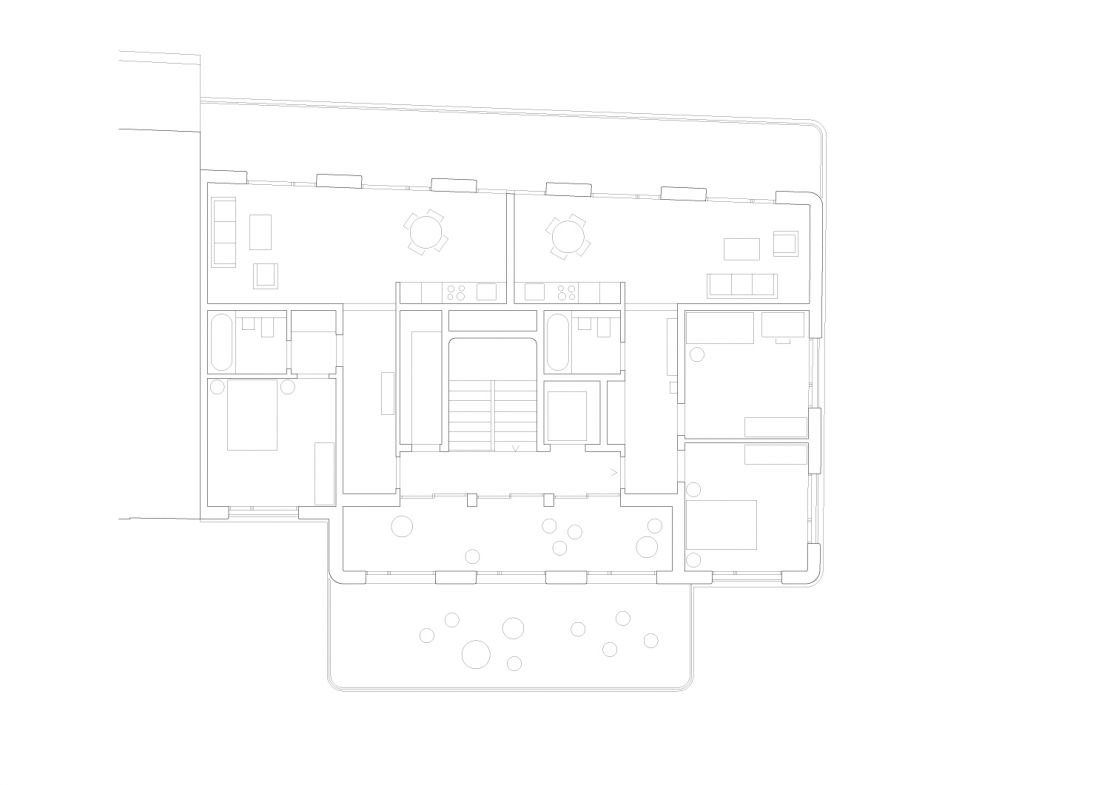
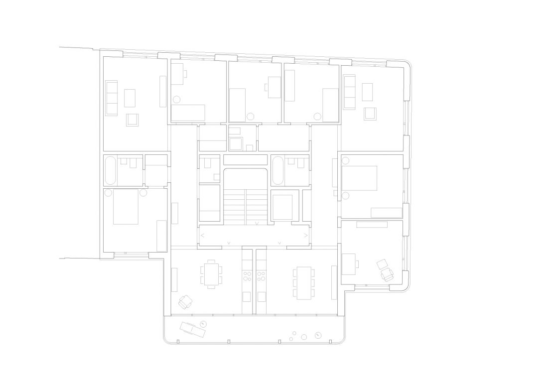
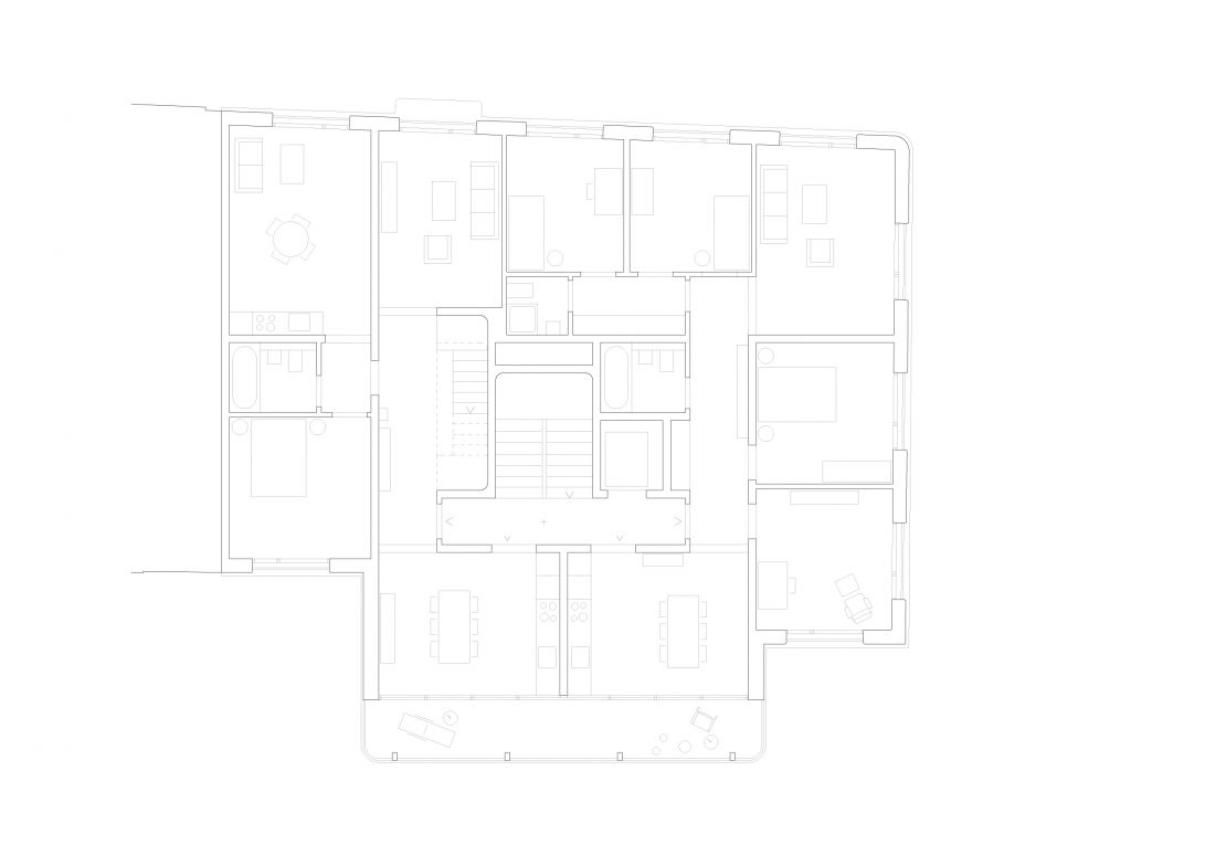
Le bâtiment complète l'amorce de cet ilôt ouvert inachevé. Côté rue, il s'aligne sur les immeubles voisins. Côté cour, une galerie aux angles arrondis s'avance et met en relation le bâtiment avec le centre de l'ilôt. Au rez-de-chaussée, ce volume abrite une salle commune et en attique une buanderie. Dans les étages, les balcons prolongent les cuisines-vérandas. 
Le projet préserve la cour-jardin et protège l'intimité des habitants. Distribués par une cage d'escalier centrale, les logements sont traversants. Ils comprennent des appartemements de 3 à 6 pièces, ainsi qu'un cluster communautaire de 8 pièces. Les chambres sont disposées de chaque côté, tandis que les séjours sont tournés sur la rue, vers le soleil couchant.