Collège de l'Esplanade - Begnins (VD) - Concours 2010, 1er prix. Réalisation 2012-2014 (étape 1)

Année: 2010-2014
Lieu: Begnins (VD)
Maître de l’Ouvrage: Commune de Begnins
Architecte associé, direction des travaux: Marchitecture
Ingénieur civil: rlj Ingénieurs Conseils SA
Ingénieurs spécialisés:
Scheidegger Kurt-R. SA, CV
Schumacher Ingénierie SA, S
Scherler Ingénieurs-Conseils SA, E
BCS SA, ingénieur façade
a21 Ingénieurs, acousticien
Notre équipe: Nuno Costa (chef de projet), Tomàs de Riba, Thomas Bollinger, Géraldine Buffin, Jeremy Butty
Photographe: Yves André
Volume: 7'561m3 SIA 416
Coût total: CHF 8'345'000.-

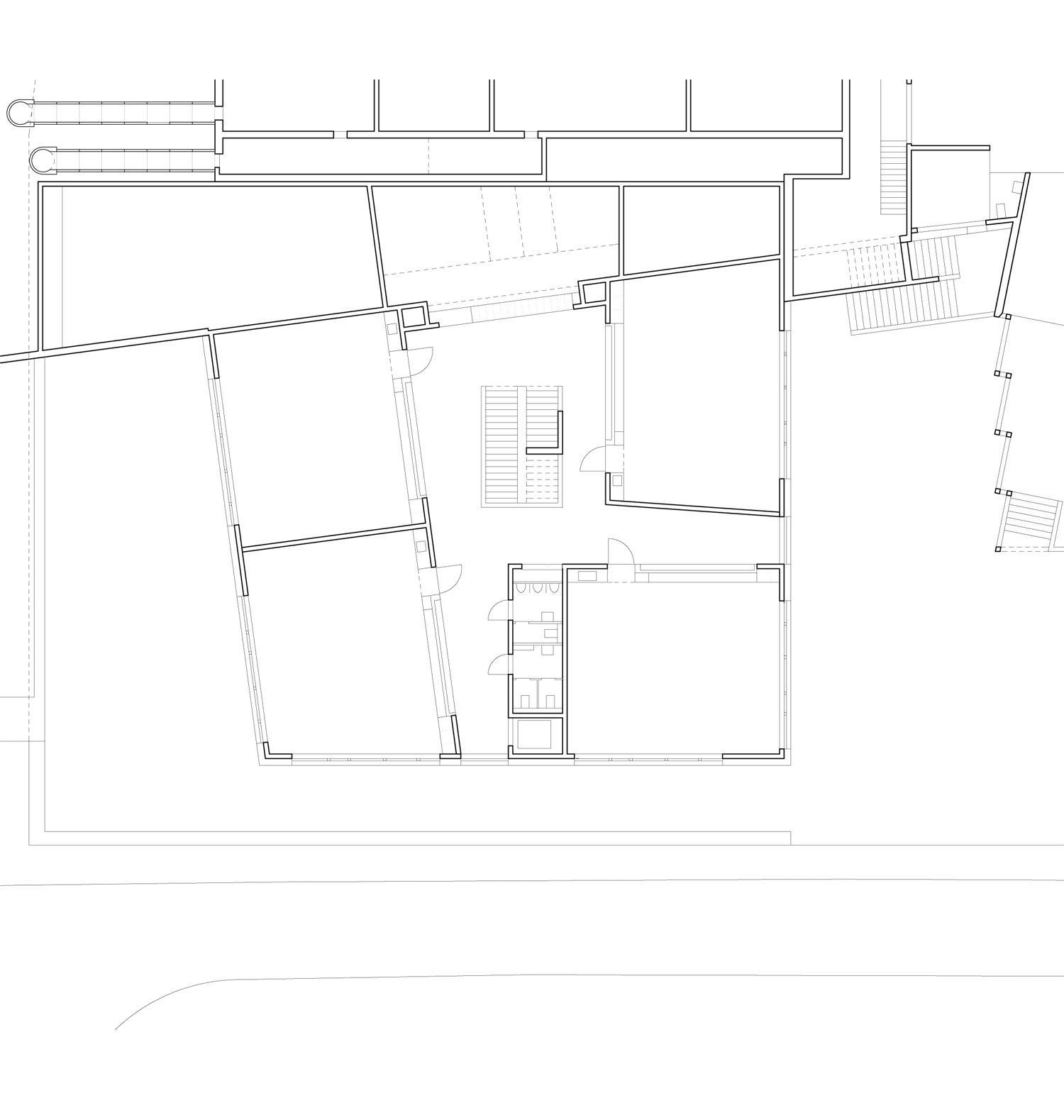
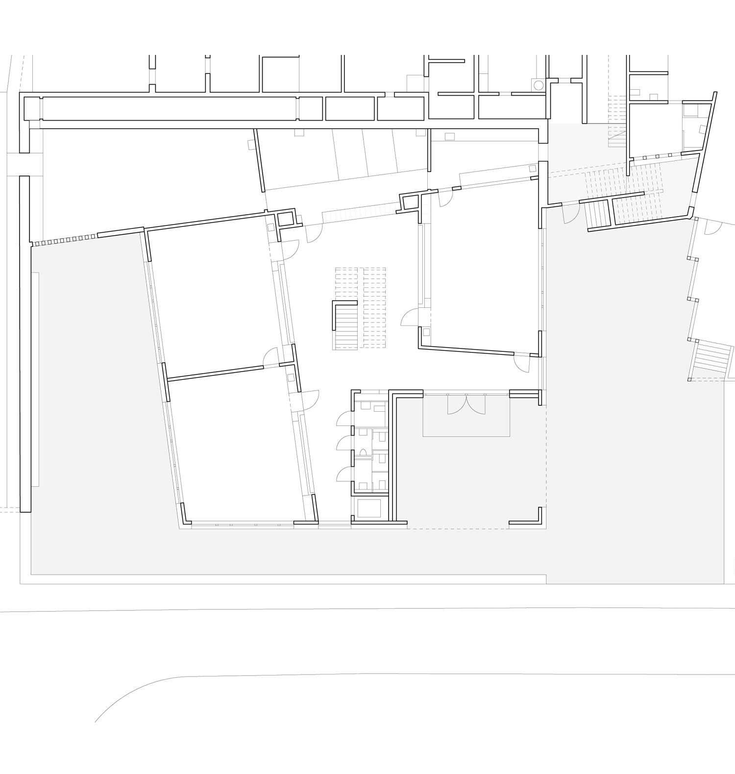
Le programme de ce projet consistait à prolonger des infrastructures scolaires et parascolaires. Il s'agissait d'agrandir les espaces de l'école et de construire un espace culturel doté d'une salle de spectacles. Il impliquait aussi de développer et de redéfinir les espaces publics, y compris la rue adjacente. 
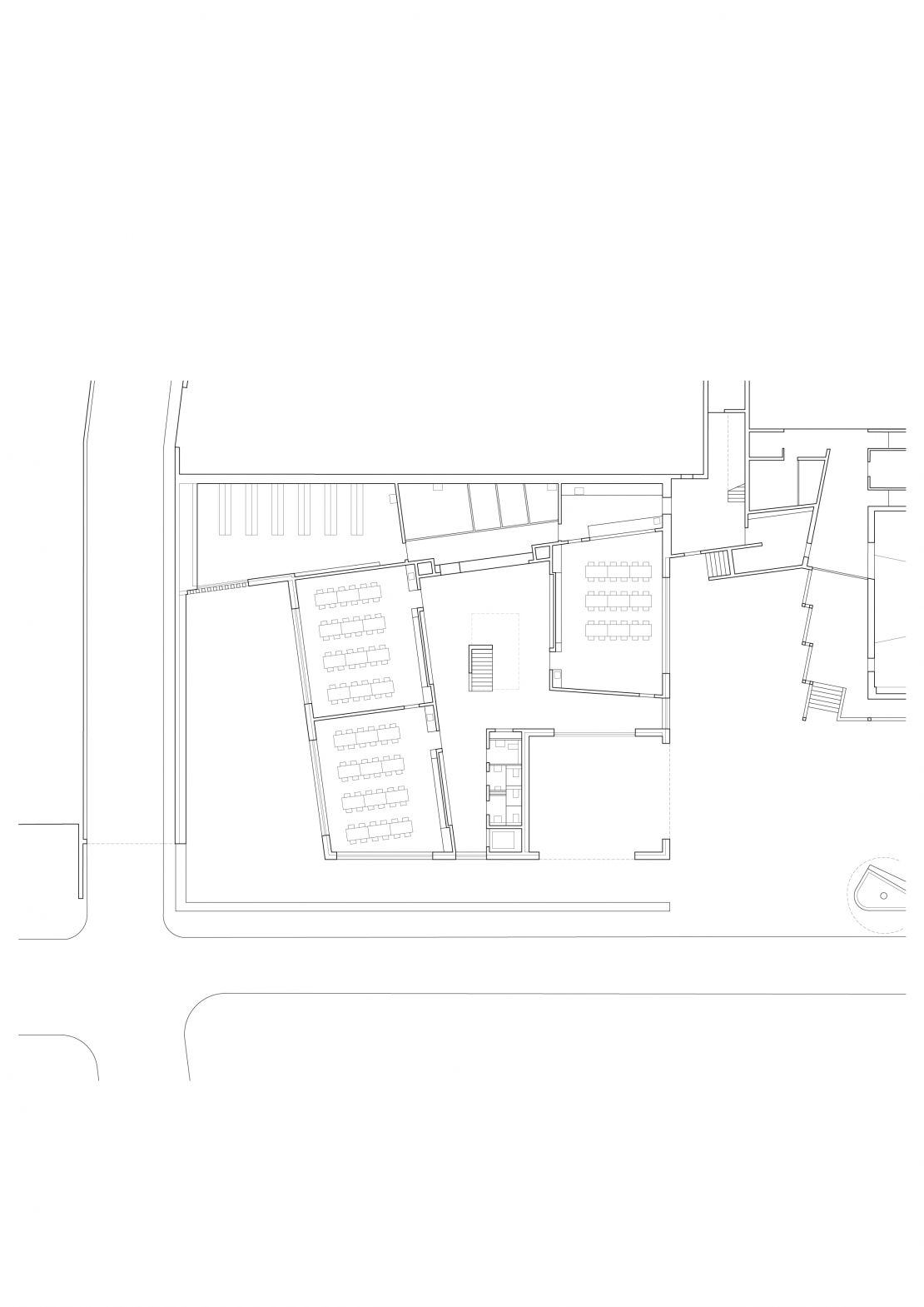
Notre proposition fractionne ce programme en trois bâtiments compacts. Le but était d'intégrer la nouvelle construction aux abords du site et à la zone viticole voisine. Nous voulions également renforcer et prolonger les parcours en les hiérarchisant au fil de la pente, à la manière de grands paliers.
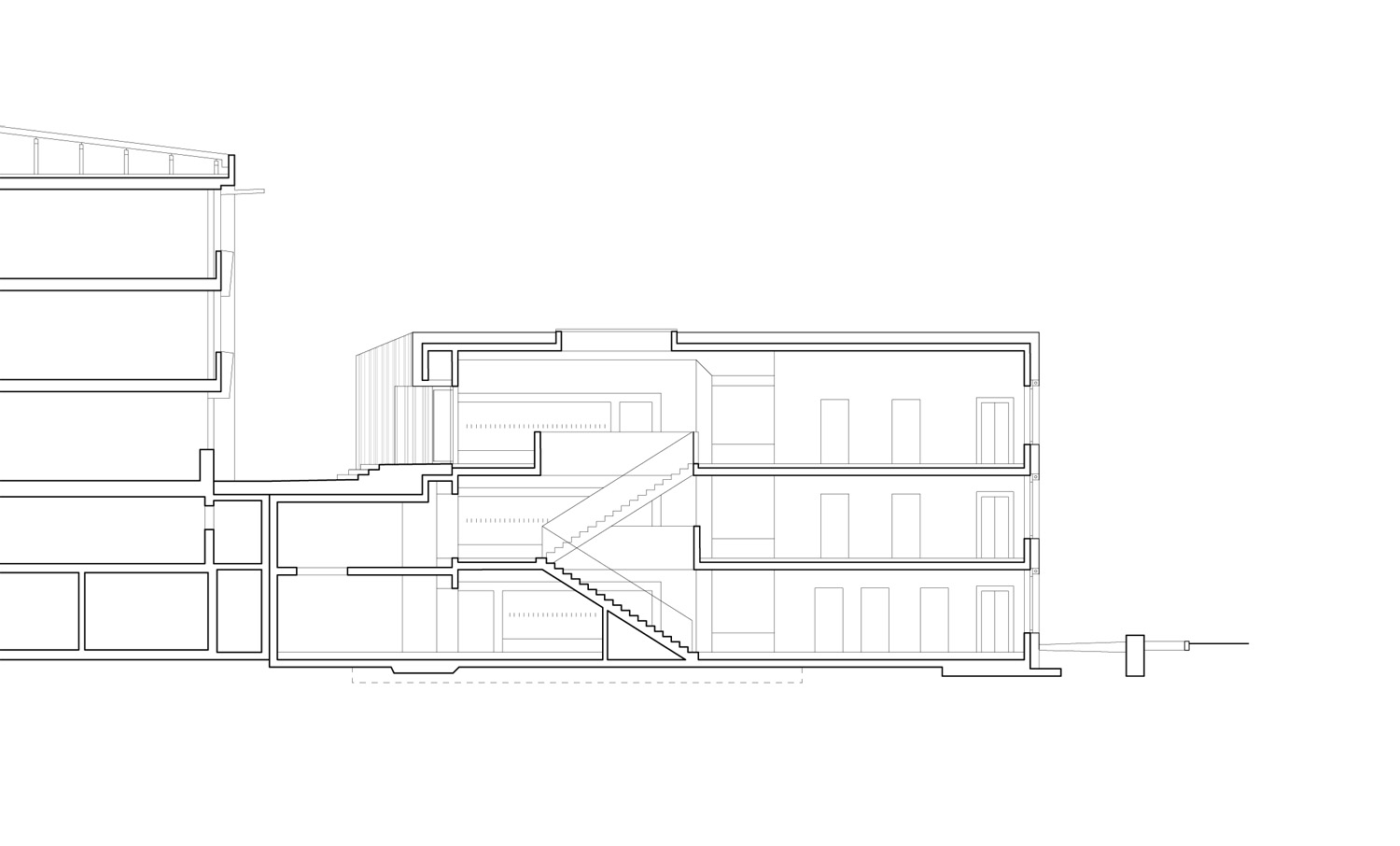
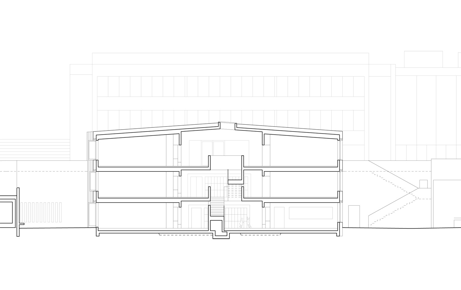
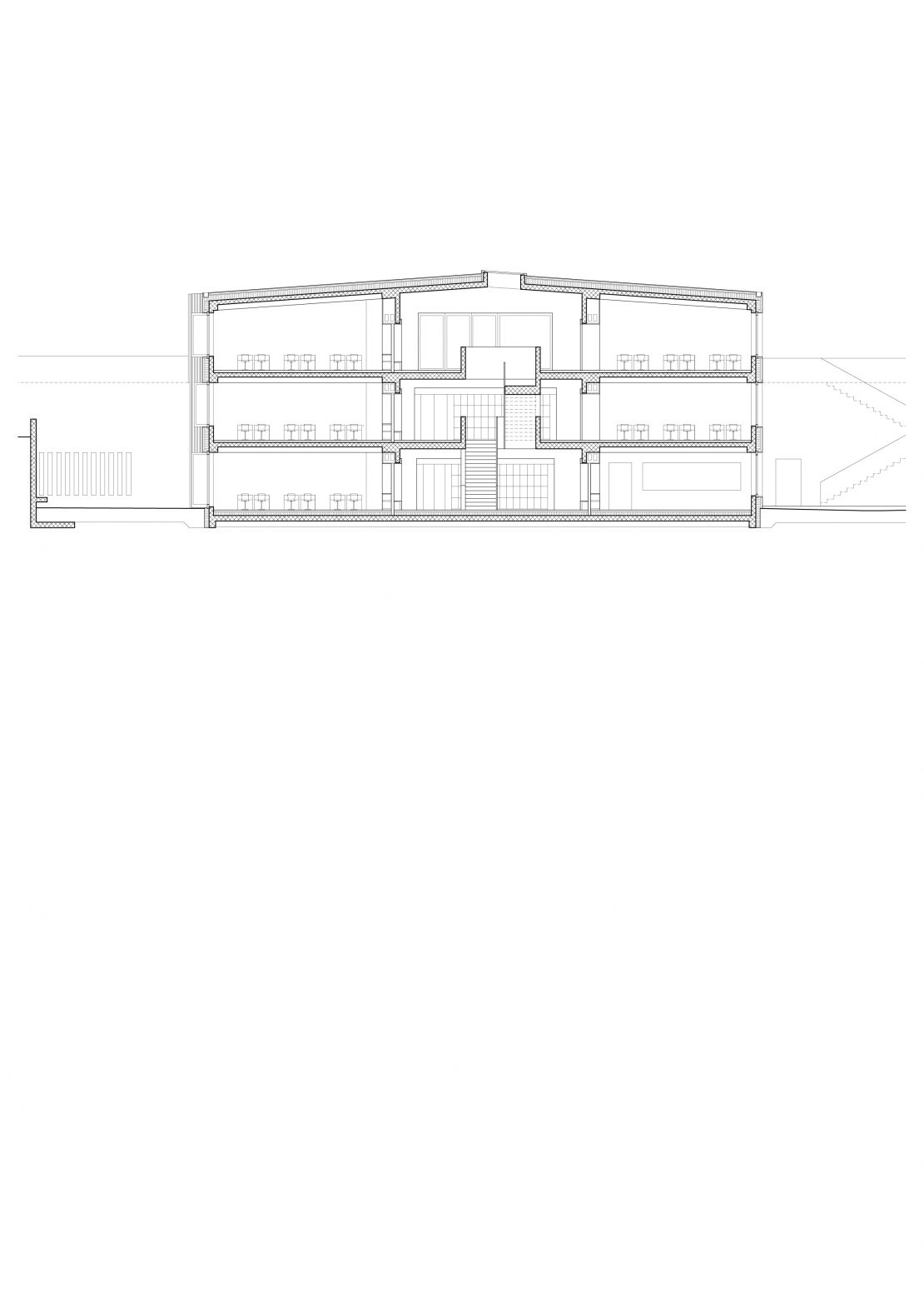
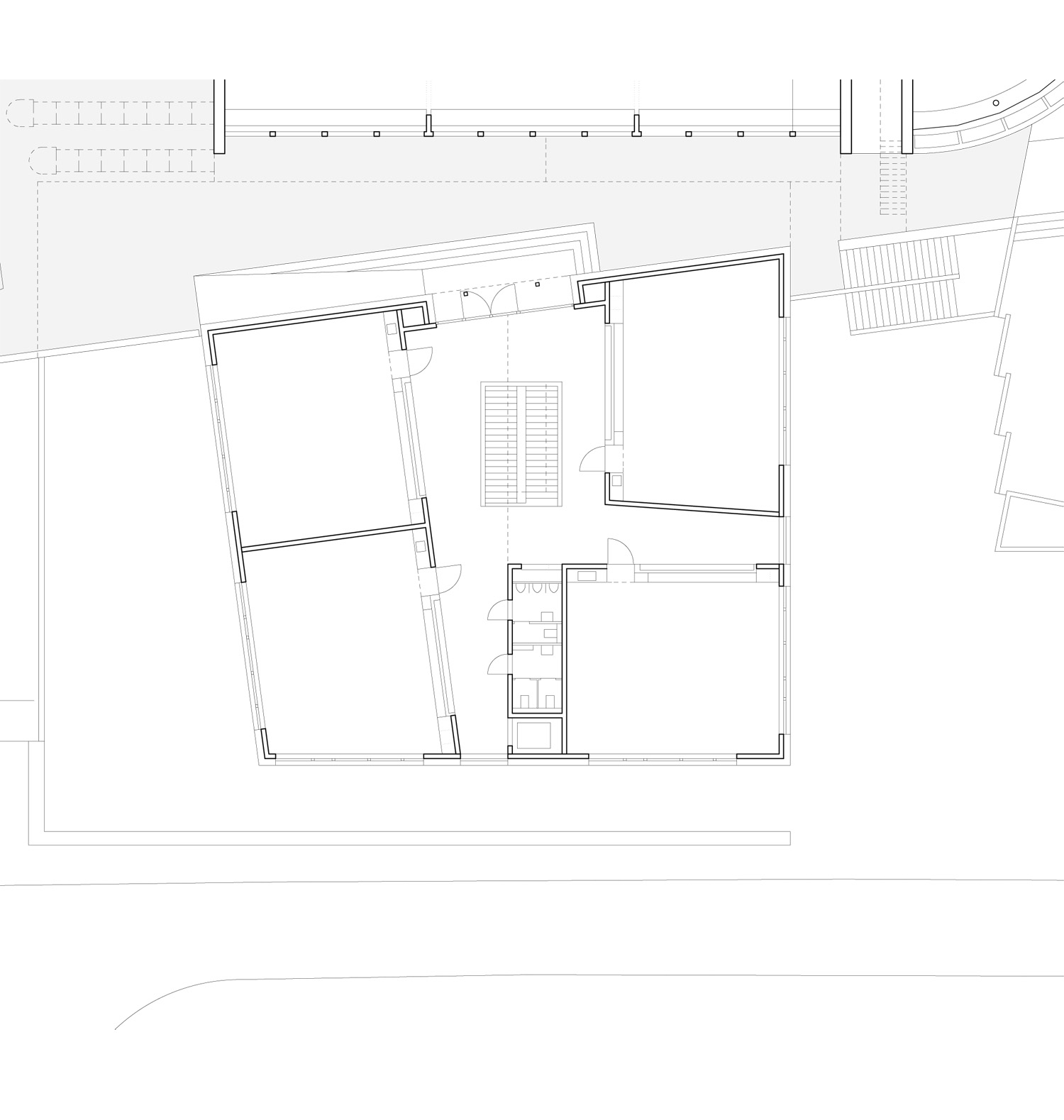
L'ensemble devait être réalisé par étapes. La première a consisté à adosser des salles de classes au collège et à tisser un lien entre le préau et la rue. Composé de quatre classes autour d'un escalier, le plan de ce premier bâtiment adopte une typologie rayonnante. 
Construites en béton armé, les structures des trois bâtiments sont similaires, de même que leur enveloppe constituée d'une isolation extérieure ventilée d'un bardage métallique. Durables, ces matériaux répondent aux exigences de performances énergétiques. Ils apportent aussi un rythme et une légèreté aux constructions, tout en leur conférant une valeur qui correspond à l'importance de leur fonction publique.