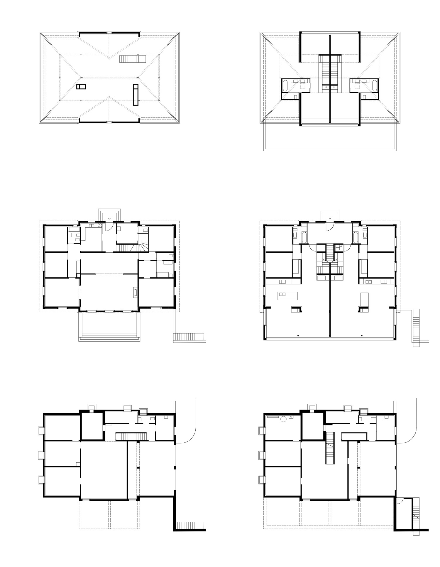
Maison double - Cortaillod (NE) - Mandat transformation. Réalisation 2006

Année: 2007
Lieu: Cortaillod (NE)
Maître de l’Ouvrage: Privé
Notre équipe: Marc Widmann, Kristina Sylla Widmann
Ingénieur civil: Opan Concept SA
Volume: 2’435m3 SIA 416