Bâtiment multifonctionnel Ecole Internationale de Genève - Campus de la Châtaigneraie (GE) - MEP 2018, projet lauréat. Réalisation: 2022-

Année: 2018- 
Lieu: Campus de la Châtaigneraie, Founex (VD)
Maître de l'ouvrage: Fondation de l'Ecole Internationale de Genève
AMO: Knight Frank sàrl 
Ingénieur civil: B+S Ingénieurs conseils SA
Ingénieurs spécialisés:
Hirt ingénieurs & associés SA, CV
srg engineering sa, S
MAB Ingénierie SA, E
EcoAcoustique SA, acoustique
BCS SA, ingénieur façade
Architecte paysagiste: Oxalis
Notre équipe: Joachim Fritschy (chef de projet), Anca Netcu, Yves Beetschen, Teresa Ferreira, Benoît Greiner

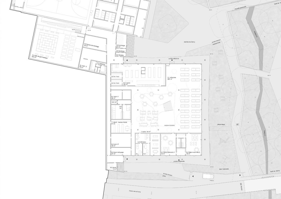
Situé le long d'un cours d'eau, ce bâtiment multifonctionnel est implanté au centre d'un campus dont une route constitue l'épine dorsale. Le projet reprend la disposition en quinconce des bâtiments antérieurs, avec lesquels il forme un ensemble. Son intégration dans la pente permet de créer une place haute et une place basse qui diversifient les lieux de vie extérieurs. 
Le concept paysager du projet met en relation deux dimensions du site, complémentaires et emblématiques: les espaces de la vie quotidienne et le vaste espace alentour. Nous voulions également conserver le caractère ouvert du lieu, ses points de vue et sa perméabilité, tout en redéfinissant les espaces d'accès et de transition. 
L'architecture du bâtiment a été conçue de façon à incarner un espace central très ouvert. Construit sur deux niveaux autour d'un vide central, le rez-de-chaussée regroupe l'espace d'accueil, le restaurant, l'administration, les locaux de musique et l'infirmerie. Les deux étages supérieurs sont dédiés au sport, avec une salle multifonctionnelle, un dojo et une salle de fitness. 
La structure est composée de plateaux en béton armé de grande portée, soutenus par une trame de piliers. Les coursives en anneau font office d'avant-toit et de brise-soleil. En offrant une grande flexibilité d'aménagement, cette construction permet un exercice très libre et flexible des divers usages prévus par le programme.